新的 Zalando 总部由两栋建筑组合而成,它们位于该公司在柏林新园区的核心——弗里德里希海因,毗邻“梅赛德斯奔驰竞技场”和东区画廊。七层建筑的设计,使之囊括了总量为43000平方米的办公空间。相较于形成一个封闭的街区,该建筑在城市中以一种开放和透明的状态呈现,创造出一种引人注目的表达方式,并与该公司的身份特征相匹配。围裹式的玻璃立面像方括号一样包裹着精心雕琢的建筑体量,并成为了设计的基础部分。通过将建筑布局以对角线的方式旋转,从而面向城市发展计划,创造出了对于传统柏林街区的重新解读。正是这种解读,使得面向城市展开的建筑设计方法能够被发掘出来。
通过这种方式,内部的庭院转移到场地的边缘,在办公室和公共空间之间形成一个流畅的过渡,转而通过利用透明和半透明立面的优点,为建筑内外提供更广阔的视野。主体建筑的核心是它的中庭,它使得建筑的开放性沿着竖向上升的方向转移,从而将日光引入到下方的公共区域。中央大厅的一侧是一个有着组合座椅和休息区的巨大阶梯,它也可以被用于举办活动。该中庭与相邻的礼堂相结合,创造了一个跨越多个楼层的空间连续体,因此增加了使用者的灵活度。会议和培训区位于咖啡厅和员工食堂旁边,额外附加在整体的综合体之上。
选择将数字网络社会和繁荣的市场进行类比并不是巧合。从厨房和运动区域到儿童保育设施,该建筑的使用者能够找到一切能够让生活和工作同时轻松和愉悦的东西。中庭起到了一个核心的作用,它的分支蜿蜒着穿过所有的七层楼,创造了许多视觉联系,像一个围绕着有着清晰定义的中心的螺旋体。从大堂开始的人行栈道将堆叠在一起的起居室与所有楼层相连接,表明了室内设计的核心理念:该室内设计不仅仅促进了水平向的交流,还依赖于支撑团队精神的垂直连接带来的重要互动。
独特的室内空间布局,是通过连锁中庭周围的两层通高空间来实现的,营造出一种意想不到的动态氛围。不规律的分散,不仅产生了多层开放空间,还产生了更加私密的隐蔽区域,以满足既定的标准,也就是工作区域的混合,从而放大这种灵活、交流的氛围。可持续的办公领域提供了能够促进创造力和交流的灵活的交流区。上层办公室的空间组织有意的与集中和交互区组织在一起,为了适应员工不断变化的需求并且满足不同的用途。
该建筑可观的深度是由巧妙的项目分层打破的,凭借从大堂到屋顶平台的多种多样的功能,将它们自己以双螺旋的形式成组,围绕在中庭周围。
在所谓的“起居室”中,不同的交流空间鼓励社交互动,例如共同工作的座位景观、带有木制桌子和吧台凳的小厨房、带有放置笔记本电脑空间的栏杆和一个俯瞰整个校园的视野。这种交流和各个独立的楼层之间的连接(BIM设计)通过开放的楼梯被额外的放大了。Kinzo 以未来为主导的设计关注的是人——毕竟,最有创造性的想法来自于社区团体内部。
公共区域是集中的,为了鼓励员工之间相遇的机会和不同部门之间的互动。交流是积极存在的。此外,像林荫大道一样,邀请人们进行交流的交通区域被创造出来。城市栈道的两侧通常会有休憩和汇聚点。每层楼还有会议室盒子,用于自发的会见和已经计划好的合作。这些主题是连接柏林所有地区的地铁的回忆,这些盒子不仅仅像是锚,还是 Zalando 附近景观的连接元素。流线、声学灯光设计,创造了一个能够被直观理解的氛围,从大声的到安静的,从公共的到私人的。
设计图纸:
▲ 总平面图
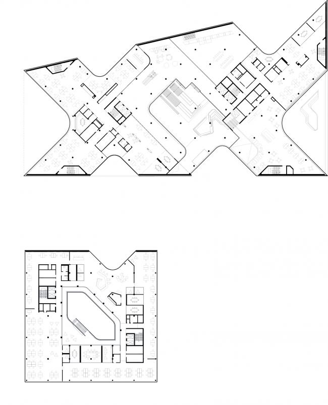
▲一层平面图
▲二层平面图
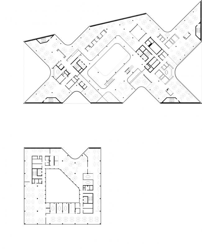
▲三层平面图
▲流线分析图
▲功能分区分析图
▲分析图
▲分析图
▲分析图
▲分析图
▲分析图
▲分析图
项目信息:
建筑事务所:HENN,Kinzo
地址:柏林,德国
类别:公共机构设施
建筑面积:59000.0 m2
项目年份:2019
摄影师:HGEsch Photography,Werner Huthmacher,Sebastian Dörken
业主:Zalando SE
工程师:BuroHappold Engineering
景观:Atelier Loidl
防火顾问:hhpberlin
物理顾问:Müller-BBM
灯光设计:Bartenbach LichtLabor

BIM建筑网















































