我们的愿景是通过设计一所现代化小学和幼儿园来创造出一个学习环境,这所小学和幼儿园对每个孩子来说都是有吸引力的、安全的、出入便利的。Tiunda 学校是一所面向学龄前至九年级儿童的学校,结构简单、坚固。砌砖外墙是这里与历史联系的纽带——这里原本(BIM)是一个旧砖厂。室内设计体现了结构的简洁性和坚固性,这为趣味性和获取灵感提供了空间。
底层的公共空间将一小酒馆、广场、主楼梯和几个共享的学习场所组合在了一起。这为学校提供了充分的空间来培养社区意识和自豪感。C.F. Møller 建筑事务所与学校及建筑专家 Anna Törnqvist 合作,设计开发了一所能够提供灵活、不受未来影响的学习环境的学校。空间设计与传统组织结构的需求相匹配,但同时它也创造了新的机会,包括更多样化的工作方法和座位安排。
新建筑还包括备餐室,一个课外俱乐部和一个新的体育馆。学校和校园是有吸引力的,它能让来这里的孩子们感到好玩,刺激,并能激发出社交意愿并具有安全感。
基于这是一个交钥匙工程和相互协作的基本特点,该项目确保了质量和结果,创造了一个开放性和意识。整个项目规划包括拆除现有学校和建设一座新的 Tiunda 学校。
项目图纸:
▲ 总平面图
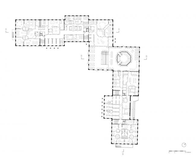
▲底层平面图
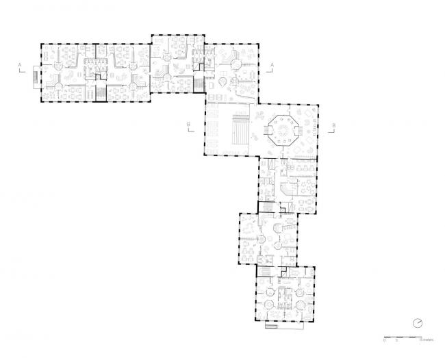
▲一层平面图
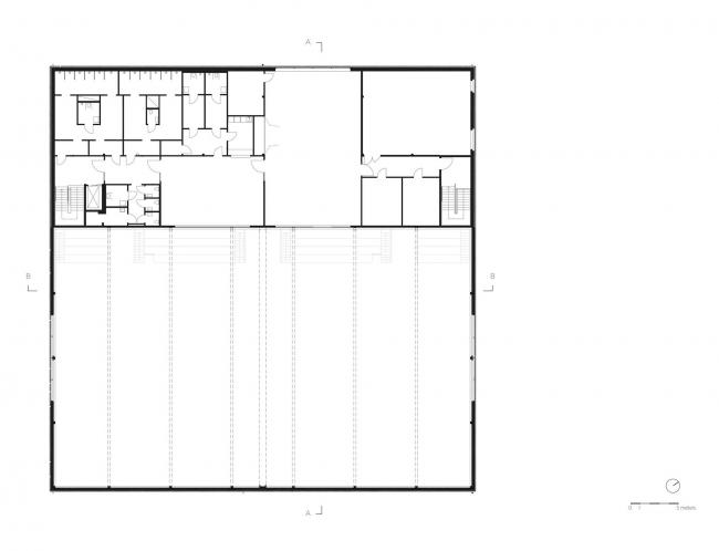
▲底层楼平面图(运动馆)
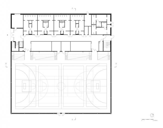
▲一层平面图(运动馆)
▲北立面图
▲北立面图
▲南立面图
▲东立面图
▲西立面图
(BIM工作)
▲南立面和东立面图1:200
▲剖面图
▲剖面图
▲平面细部图
▲平面细部图
项目信息:
建筑事务所:C.F. Møller Architects
地址:乌普萨拉,瑞典
类别:小学及初中
建筑面积:15500.0 平方米
项目年份:2018 年
摄影师:Mark Hadden,Nikolaj Jakobsen

BIM建筑网













































