这是日本松山市的一个重建幼儿园的项目。近年来,汽车成为省会城市的日常必需品,越来越多的孩子乘公交车或汽车去幼儿园,因此他们在日常生活中锻炼的机会越来越少。越来越多的孩子在室内玩电子游戏,因此他们自己在各种各样的自然环境中找到游戏的机会也越来越少。在这种情况下,KO 幼儿园以“从玩耍中获得健康”的理念进行重建。
该方案通过将员工办公室、托儿所等各个房间横向和纵向移动,创造出自由空间,使14种独特的游戏空间看起来像一条街道,成为孩子们过去玩耍的地方风景。山梨县大学教育学教授中村和彦表示,儿童应该学会36种身体动作,如“跑”、“跳”、“堆(BIM设计)”、“抱”等。这36个动作都可以在这14个游戏空间中被学习到。
根据对幼儿园儿童运动的比较研究,(BIM工程师)3-5名儿童的平均步数增加了20%。此外,“投掷”、“穿越”、“爬行”和“骑行”这些在以前的建筑中不被重视的活动,在新的建筑中也可以实现。在平坦的操场上,运动是有限的,而新操场上的两个小山丘和天然草地可以为运动提供无限的可能。
孩子们喜欢翻滚和攀爬。此外,许多虫子和鲜花能让孩子们自己创造新的游戏。通过这些方式来创造游戏空间让孩子们进行锻炼,这些游戏不仅改善了他们的运动量和体力,而且这些环境鼓励他们创造游戏,培养多种兴趣。
项目图纸
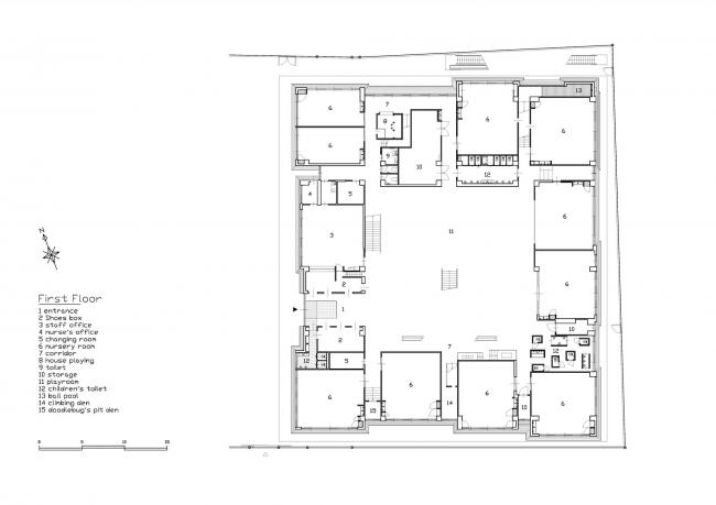
▲ 一层平面图
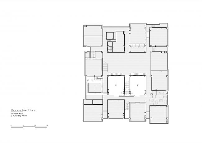
▲夹层平面图
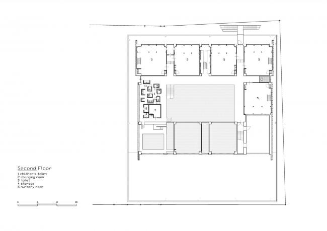
▲二层平面图
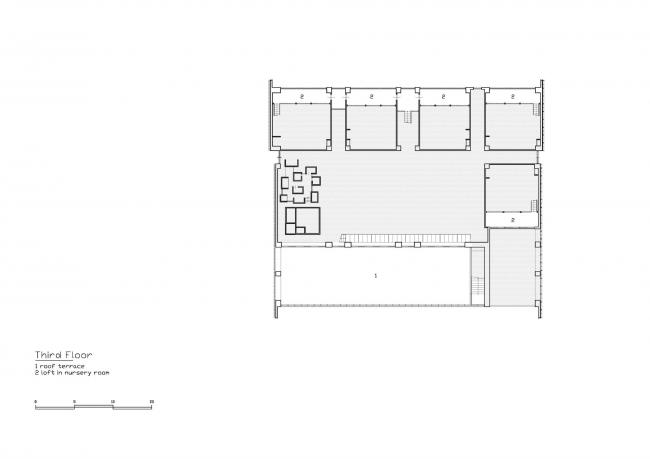
▲三层平面图
▲立面图
▲剖面图
项目信息
建筑事务所:HIBINOSEKKEI,Kids Design Labo,Youji no Shiro
地址:松山市, Ehime Prefecture,日本
类别:幼儿园
建筑面积:2220.0 m2
项目年份:2019
摄影师:Studio Bauhaus, Ryuji Inoue
厂家:GANTAN BEAUTY INDUSTRY, Bozo, KIDS DESIGN LABO

BIM建筑网


























