khosla 建筑工作室和 tsk design 设计工作室的设计是两个工作室之间的协作过程。紧凑的用地使我们首要考虑的是如何在最大限度地提高效率的同时,仍能保持一种开放和轻松的氛围。
三层楼的无柱式平面被放置在一个带窗的混凝土电梯和楼梯核周围。此外,每层楼的窗台高度都有一圈外围圈梁,使窗户能(BIM学习)一直延伸到屋顶。通过这个简单的移位,我们获得了一种明显的空间感和光线感。
每一层外部都有一圈2(BIM培训)英尺宽的悬挑遮阳板来遮挡阳光和雨水。我们设计了一套木制方形格子屏(Jaali)系统来保护可开启窗扇。格子屏的图案来源于 Sandeep 和 Tania 为 Bharat 地板设计的异想天开的“Dashdashdot”系列水磨石瓷砖,它也用作工作室接待处引人注目的垂直背景。木质格子屏在白天能够过滤日光,屏蔽某些不受欢迎的画面,允许自然通风。它在为建筑提供一层安全屏障的同时,也活跃了白天的室内空间。
在建筑中开辟空间来培养创造力并促进设计师之间的合作。最突出的特点是一个轻巧的粉蓝色钢制和木制混合楼梯,像一个贯通三层高工作室的垂直脊柱。这个戏剧化的体量白天沐浴在自然光线下。沿着墙壁垂直攀爬的图画使这个楼梯更加突显,它也成为了一个相遇的空间、交谈的场所,你可以在这里停顿或继续疯狂的一天。
Tania 在设计时的出发点是 Eames 乌鸦,她想象它飞行在印度的自然风景中,栖息在一头牛上或在啄食金盏花。艺术家 Jeeva 组建了一支出色的团队,他们在乙烯基材料上切割这些巨大的模板,然后手工在板条混凝土表面上作画,产生了令人愉悦的效果。
工作室所使用的材料具有纹理,但同时也保持了单色性。这里有砖墙、涂成白色的 Kerala 屋面瓦、成品混凝土、找平的水泥地面和带有图案的水磨石。散落在环境和家具中的流行色彩,以及浅色橡木橱柜形成了对比,并打造了一个温暖的氛围。特别令人愉悦的是入口接待处的图样控制台,由 Sandeep 和 Tania 设计。
这间工作室里堆满了上世纪50年代班加罗尔一栋房屋被拆除时在车库拍卖会上捡来的一些中世纪家具碎片。这些碎片被精心地恢复到原来的状态。除此之外,还有其他定制作品、不拘一格的配饰,以及大量的样品和原型,都反映出两个设计工作室的情感和精神。
项目图纸
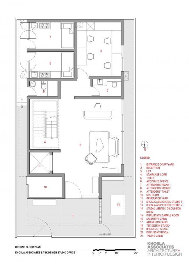
▲ 底层平面图
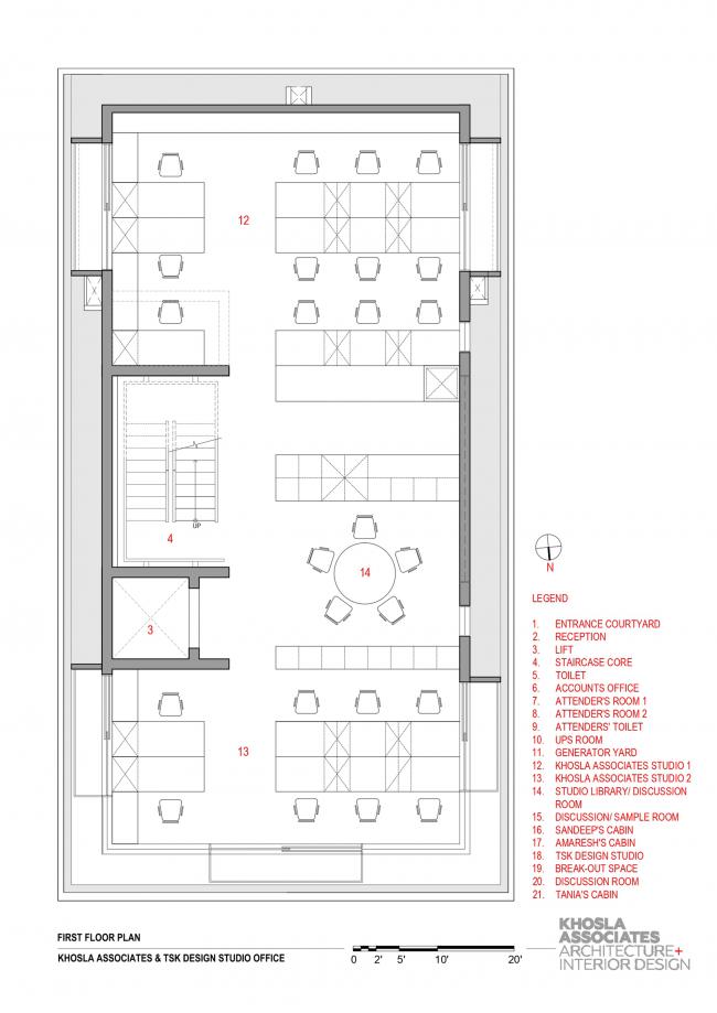
▲一层平面图
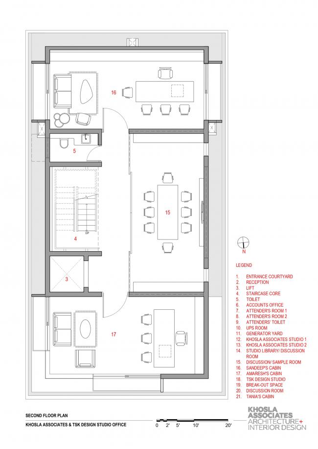
▲二层平面图
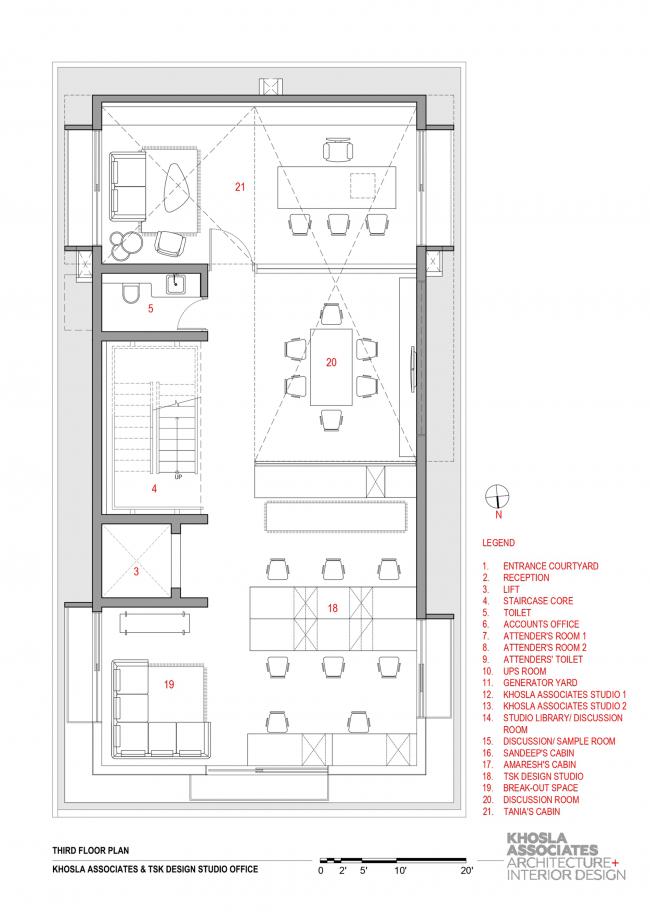
▲三层平面图
▲剖面图
▲格子屏细部
项目信息
设计方:Khosla Associates,tsk Design Studio
地址:Bengaluru, Karnataka,印度
类别:办公室
建筑设计:Khosla Associates + tsk Design
主持建筑师:Sandeep Khosla and Amaresh Anand
建筑设计团队:Bijetha Bachaspati and Divya Devatha
项目年份:2018
摄影师:Shamanth Patil J
厂家:Kohler, Louis Poulsen, Autodesk, Trimble Navigation, TORFENSTER, PANDOMO
平面设计(创意总监):Tania Singh Khosla
平面设计(设计团队):Chahat Kathotia and Robby Banner
家具和橱柜:Virasp Batliwala
土建承包商:JJ Constructions.
格子屏:SFA works
艺术家:Jeeva

BIM建筑网





























