▲ 瑜伽亭及泳池
项目位于云庐酒店所在的杨家村背后的山脚下的一个台地上。透过对场地进行最少量的平整和对周边植被及景观视野的最大保留,设计将一组近乎等比例、等面积的泳池和瑜伽亭平行并置于场地当中,形成整个酒店空间序列的制高点。
▲ 鸟瞰
▲ 日景鸟瞰
建筑师通过对环境的细腻捕捉,感知光影,微风及风景,选址布局巧妙融合周边环境。地面的曲线边界顺应山石走向,嶙峋的喀斯特地貌孤石近亭散置,成为近距离感受大地生命气息的景观。瑜伽亭以极简的方式向自然与古典建筑致敬。
▲ 瑜伽亭及周边生态
▲ 瑜伽亭及周边生态
▲ 瑜伽亭下空间
通过一组弧线钢板墙和A型钢柱支撑起一片24米*8米的水平屋檐。钢板墙结合储藏及壁炉等多种用途,从此处望向对角线尽端,A字撑轻盈简洁隐身于风景之中。充满视觉张力的设计,传递出瑜伽活动力与美的关联,寻求自然与自我的平衡。
▲ 入口
▲ 模型鸟瞰
▲ 模型立面
▲ 夜景鸟瞰
结构支撑部分全部用素钢板打造,经过打磨后保留的焊缝痕迹清晰可见,呈现独特的印记和纹理。弧线钢板墙部分由12毫米厚的钢板组成,背面的横向肋板既有结构作用也可作为储物隔板。
▲ 弧形壁炉
▲ 壁炉内景
屋顶部分采用仅30公分高的箱梁结构,喷涂成具有未来感的金属银灰色,通过精巧的结构设计增强屋顶的“悬浮”感,举重若轻。所有电气设备,灯具及吊顶板均整合在此厚度内,并通过两侧变截面的处理形成边侧轻薄的视觉效果。利用中部钢板的可受力承重部分,开孔设6组内嵌式吊杆,可吊挂空中瑜伽吊床或无线灯具。考虑瑜伽活动会有很多抬头仰望的姿势,屋顶下的空间设计也是颇具匠心。
钢梁之间嵌入银灰色的硅孔砂吸音板作为吊顶,清晰地显露出结构骨架也兼顾内部空间吸音效果。在日光晴好的白日,条形天窗及锥形采光孔捕捉时刻变化的光影,带来别有洞天的惊喜。嵌入吊顶内的天花灯,带来柔和光线,夜幕下星星点点的效果又似另一重浩渺的星空。
▲ 开敞瑜伽空间
▲ 夜晚瑜伽亭星光点点
一圈近50米周长的抗紫外线半透明的 Sunbrella® 布帘替代了常规的玻璃门窗。夹于硅孔砂吸音板和抛光水磨石之中的半室内空间完整捕捉了前村到后山的全景叙事。
每平米127克重的轻质半透明布帘形成若即若离的边界。最大幅面为3米,而长度不等的三幅布帘的上部采用曲线轨道固定,下部于帘布内置铁圈链以吸附在地面固定的强磁铁上。这个自行研发设计和定制的系统可在弱风时起到抗风的作用并保持幅面的平整效果,而在强风时则能有效脱开底部连接而达到泄压的作用,以避免布帘受到风力损坏。
帘内空间可作为瑜伽场地、泳池休息区、举办宴会及会议等多功能使用。弧形钢板正面嵌入柴火壁炉,冬季围炉夜话,倍感暖意。淋浴区背靠水洗石墙,迎面铺陈开来的是近在咫尺的峭立山石和盎然绿意。
▲ 帘布围合瑜伽空间
▲ 帘布半围合瑜伽空间
▲ 帘布半敞开瑜伽空间
▲ 瑜伽空间与泳池
泳池占地范围同瑜伽亭相当。泳池以东侧台阶处作为入口,西侧环绕孤石以弧线边界收尾。入口平台东侧设置按摩池,平台下方借助高差布置50平米的泳池设备间。地势低处为无边界泳池, 高处是镜面浅水池。低池深而近路,可望村、望树、望石。高池浅而近亭,可观山、观云、观星。
▲ 瑜伽亭及泳池
▲ 泳池
▲ 按摩池望风景
同时为顺应周边环境,场地上原有的无患子也得以保留,结合座椅台阶形成特色树池。设计方案在有限的条件下,争取最合适的树池范围,回土到原有标高,并配合景观植栽措施,在业主,施工方及景观顾问的协力合作下才实现了这次“保树”任务。
▲ 瑜伽亭及泳池
▲ 泳池中树池
泳池面层采用灰白调的水洗石,通过富有手工感的材料施作,水下台阶及座椅呈现舒适的弧度及转角处理。一百多平米的泳池范围内,伴随树影及山石,有多处可游可躺可坐的角落及空间。水平延展的大屋顶悬挑于浅池上方,亦晴亦雨均可赏景,此处朝南远望,澄明宁静的水波涟漪映衬着竹影、村落、如黛青山。
▲ 瑜伽亭及泳池
▲ 自然风光
▲ 台阶材料
▲ 台阶材料
项目图纸
▲ 总平面图
▲ 南立面
▲ 西立面
▲ A-A剖面图
▲ B-B剖面图
▲ C-C剖面图
▲ D-D剖面图
▲ E-E剖面图
▲ F-F剖面图
▲ 结构爆炸图
▲ 壁炉技术图
▲ 树池细节图
▲ 屋顶及天花
▲ A-A顶棚剖面及窗帘细节
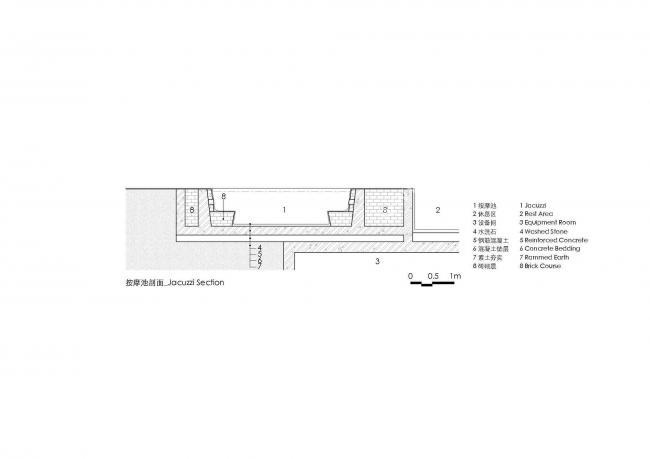
▲ 按摩池剖面
▲ 台阶扶手细节图
▲ 排水沟剖面
▲ 泳池树池手绘草图
▲ 地震变形、竖向变形、应力分析
▲ 瑜伽亭概念模型
项目信息
项目地址:桂林,中国
建筑设计:刘宇扬建筑事务所
面积:828.0m2
项目年份:2018
摄影师:田方方
主持建筑师:刘宇扬
项目建筑师:王珏
设计助理:陈薇伊(表现模型及施工配合阶段)
实习生:赖逸宁,管佳颖(表现模型),邓文君,周晨妍(前期概念)
业主:阳朔喜岳云庐旅游度假有限公司
结构顾问:和作结构建筑研究所/张准
机电顾问:刘涛,顾青,颜兆军
景观顾问:郭怡妦
泳池顾问及施工:上海丽致环境科技有限公司
施工单位:上海卓浩装饰工程有限公司

BIM建筑网

















































