Axis Vanam(梵语意为“森林”)旨在成为一个周边混乱环境中的绿洲。该项目的最初想法是拉近建筑和环境之间的距离。通过对社区一定的研究,我们发现了附近不断减少的绿地和垂死的湖泊。Vanam被设计来刺激城市肌理中这一日益扩大的缺口,以恢复建筑和绿色空间之间的平衡,模糊两者之间的界限。
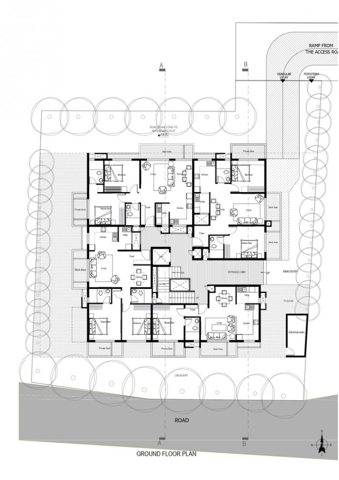
Vanam位于班加罗尔最繁忙的社区之一的中心,是一个中型住宅项目,共有20个居住单元,分布在5个楼层。每个单元都是朝外的,以保证充足的光线和交叉通风。
中央核心设有天窗和位于露台的百叶窗,以协助烟囱通风,提高所有范围内的舒适度,并减少对机械通风的依赖。
每个单元都很紧凑,计划作为带两间卧室的公寓,并利用露台的延伸,附加额外的灵活区域。居民可以积极利用这个空间可以开展一天内的各种活动。该结构还具有将该区域转换为绿色空间的灵活性,因此,没有两个单元是相同的。多功能空间随时间而变化,以适应用户的生活方式。
公寓的开口是依据风向规划,以吸引充足的自然通风。阳台交错排列,创造了两层通高的体量,连接到客厅或主卧室,也为阳台上的高大树木打提供了空间。
阳台被重新定义为“花园甲板”,用于固定土壤和铺路,为每个家庭提供不同级别的私人花园。与传统的阳台不同,该住宅的阳台形式从土壤静定角度出发,有利于下沉土壤进行填充。阳台零散而流畅的配置为整栋建筑的几何形状增色。阳台的结构通过增加较深的梁来承担土壤荷载,较高的窗户也能接触较低单元的梁底。
阳台的模板为4英尺宽,6英尺高。通过在GI中完成几个模型测试,最终模板在MS中完成。虽然理想的方法是预先浇筑阳台,但由于财政资金有限,因此需要人工操作,并且所有阳台都采用可用的模板数量和时间框架单独浇筑。花盆槽也遵循了阳台的形式和功能,集成了下沉功能,在每一层增加更多的水平绿色空间。
建筑的整体材料与阳台的绿植相结合。建筑师希望突出通高的转角处,增强视觉统一性。12毫米厚的砖砌外墙与裸露的灰色纹理一起构成了主要的立面材料。交错的光影也加强了立面材质的效果。
公共区域由天然石材地板和赤陶组成,通过天窗进一步连接在一起。种植方式是热带且本土化的。每个阳台都有一棵树,使得居民与绿植产生互动。阳台和花盆形式通过延伸悬挑空间,使得居民可以沿整个长度种植绿色植物。令人期待的是,在未来的几年里,人们会发现建筑中的绿色空间比混凝土表面上的绿色空间还要多。该建筑试图引入“中间景观”作为环境过滤器,将居民与绿色空间连接起来。
项目图纸
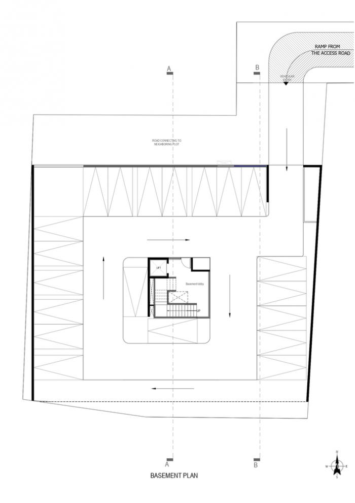
▲ 地下室平面图
▲一层平面图
▲二层和四层平面图
▲三层和五层平面图
▲东立面图
▲北立面图
▲剖面图AA
▲剖面图BB
▲ 露台剖面和花盆剖面
项目信息
项目类型:公寓
项目地点:班加罗尔,印度
建筑设计:The Purple Ink Studio
面积:22000.0m²
项目年份:2019
摄影师:Niveditaa Gupta
厂家:Trimble, Ganesh Sign Boards, Brown Kota & Black Granite, Asian Paints, Otis, UPVC Windows, Z.S Fabricator, Madhavi constructions, Autodesk, Prashali Bricks, Lumion
设计团队:Akshay Heranjal, Nishita Bhatia, Sharanya, Priyanka, Arpita Pai, Jaikumar
客户:Axis Concept Construction Pvt Ltd
工程师:Naik Associates
景观设计:The Purple Ink Studio: Aditi Pai
顾问:Ceecon Engineers

BIM建筑网






























