△ 入口
“格框里的度假屋”坐落于一个叶片状的街区,处在一个稍稍抬高的地块,通过一条安静的道路与外部连通。住宅为沙迦(Sharjah)的一对夫妇和他们的四个孩子设计,这栋房屋应该在他们频繁前往喀拉拉邦(Kerala)期间成为一个休闲放松、自我更新和享受天伦之乐的场所。这栋藤蔓般的房屋和它的许多房间能够容纳并娱乐这个家庭,和一些在这些时候可能会和他们同住的亲朋好友。最后,由于这栋房屋应该成为他们永久的家园,它也被如此设计,而非仅仅作为一个度假别墅。
△ 入口
△ 庭院
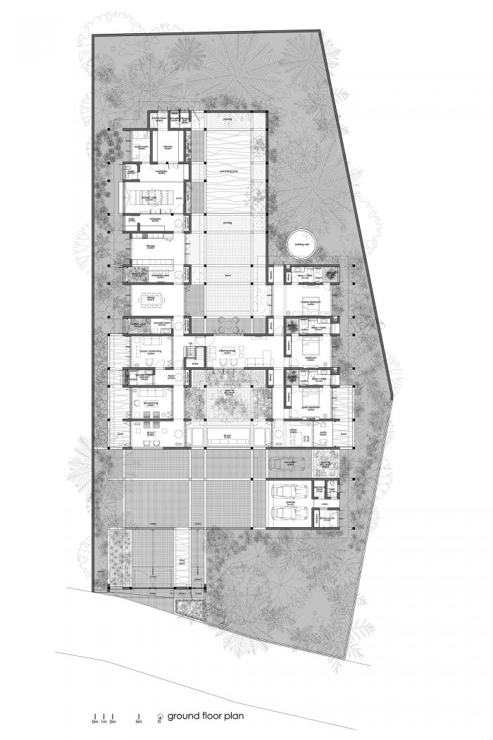
房屋由两个相互平行、在中间相连的不同体量组成,每个体量都有一系列固定的功能区域和一个线性的交通轴,在任何可能的地方融入房间。首要功能和次要功能混合在一起,它们有不同的房间宽度,在整栋房屋里创造出清晰可见的重复的空间样式。这个项目是一个练习,挖掘了具有惊人可塑性的模块化网格的空间潜力。将房屋严肃而沉稳的几何形式与场地上杂乱无章的景观并置,一种特别的空间语言产生了,成为每日冥思活动的神秘舞台。
△ 户外就坐区
△ 户外就坐区与小花园
△ 户外就坐区与小花园
△ 左侧户外就坐区
△ 左侧水池
△ 正式会客厅
△ 走廊
△ 祈祷室
用户通过一个阴影中的户外就坐区域进入房屋,到达一个室外庭院,它连接了左侧正式的户外就坐空间与右侧的办公空间。场地东侧单层的波浪形体量容纳了前方的公共和半私密区域,例如访客休息厅,正式起居室,集体祈祷区,餐厅,盥洗室等,以及后方更私密的空间,比如厨房,工作区,厨房庭院,杂物间等。场地西侧的双层体量容纳了六个卧室和它们各自配套的卫生间,还有一个集约的办公空间以及一个俯瞰浅水池的小露台。这个体量延伸至北侧,以容纳一个开放的和一个封闭的汽车门廊,二者都能从覆有铺地的前院进入。
△ 厨房早餐区
△ 二层家庭客厅
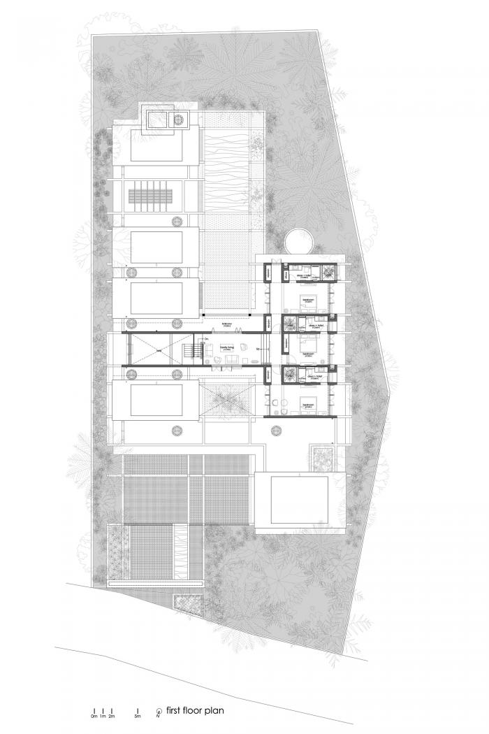
两个主要的体量相互分离,为卧室部分提供它所需的私密性。然而,一个家庭空间在各层把两个体量连接在一起,同时严格地遵守网格构图。楼梯间被放在这个空间,显著提高了交通流线的效率。这个中心空间在连通两个体量的同时,也成为一个休闲场所,鼓励家庭成员间的交流。
△ 办公区
△ 右侧水池
△ 走廊
△ 卧室区
△ 卧室
△ 卫生间
两个大庭院被设置在平行的体量之间,用以改善项目的通风和流线。北向的入口庭院是户外就坐空间的延伸,而南向的更大的庭院是地面层家庭空间和餐厅的延伸,其中的一个天井餐厅和一个游泳池成为必要的溢出空间。这些庭院之外密集的植被与房屋网格中稀疏而有规律的景观形成对比,创造了一个妙趣横生的混合物。
△ 泳池鸟瞰
△ 泳池休闲区
△ 泳池一侧走廊
△ 室外水池
建筑平面被策略性地规划,在为家庭成员提供私密性的同时,借助其朝向优势,引导主导风向的季节性转变,使其穿过建筑空间,促进了贯通的对流通风。这使房间尽可能空气清新,室内温度尽可能低。波浪型的体量和一些悬挑的板片在变换的热带阳光下彼此遮挡。这些漂浮的屋顶也帮助有效地收集雨水,雨水流过一系列在项目中随处可见的定制的不锈钢雨水管,进入设计的雨水收集腔。这些大屋顶上放置的一系列太阳能板帮助产生房屋自给自足所需的能量,使其保持与世隔绝的状态。
△ 庭院夜景
△ 庭院夜景
△ 游泳池夜景
设计图纸
△ 一层平面图
△ 二层平面图
△ 屋顶平面图
△ 北立面图
项目信息
项目类型:独立住宅,别墅室内
项目地点:ANDATHODE,印度
建筑事务所:LIJO.RENY.architects
面积:811m²
项目年份:2019
摄影师:Praveen Mohandas
厂家:Toto,Alfriday,Art,Berger Paints,Better Life,Blue Loft,BoConcept,Corvi,Defurn,EBCO,Englander,Fanzart,Finura Kitchens,Gebrit,Greece,Hafele,Hansgrohe,Havells,Home Centre,Kajaria, +16
建筑师:LIJO.RENY.architects, Thrissur, Kerala
主创建筑师:Reny Lijo, Lijo Jos
客户:Dr. Shammer and Family
室内设计:LIJO.RENY.architects
景观概念:LIJO.RENY.architects
结构工程师:Ummer P Hydru
电气与管道:Prof ismail Anodiyil
监理:Ummer, Manu Mani
市政工程师:Mohamed Pattabi, Siddeque, Siju
地面:K.N. Chandran
刷漆:Purushotham
墙体:Karpento, P.A. Mani and 1000 kitchen
灯光设计:Zion, Thrivandrum
房间自动化:Arcnet, Sapians Automation and Smak Enterprises
景观设计:Unique Garden Decor, Naveen and Ragesh
游泳馆:French Pools
玻璃供方:Crystal-Thrissur and Suresh
钢铁结构:Star Steels
金属门:Chemmanur Metals
太阳能板:Wukud Power
软装:Art Legend- Calicut
水利系统:Greenteck
场地面积:2114.32 sqm. (0.52 acres)

BIM建筑网

































