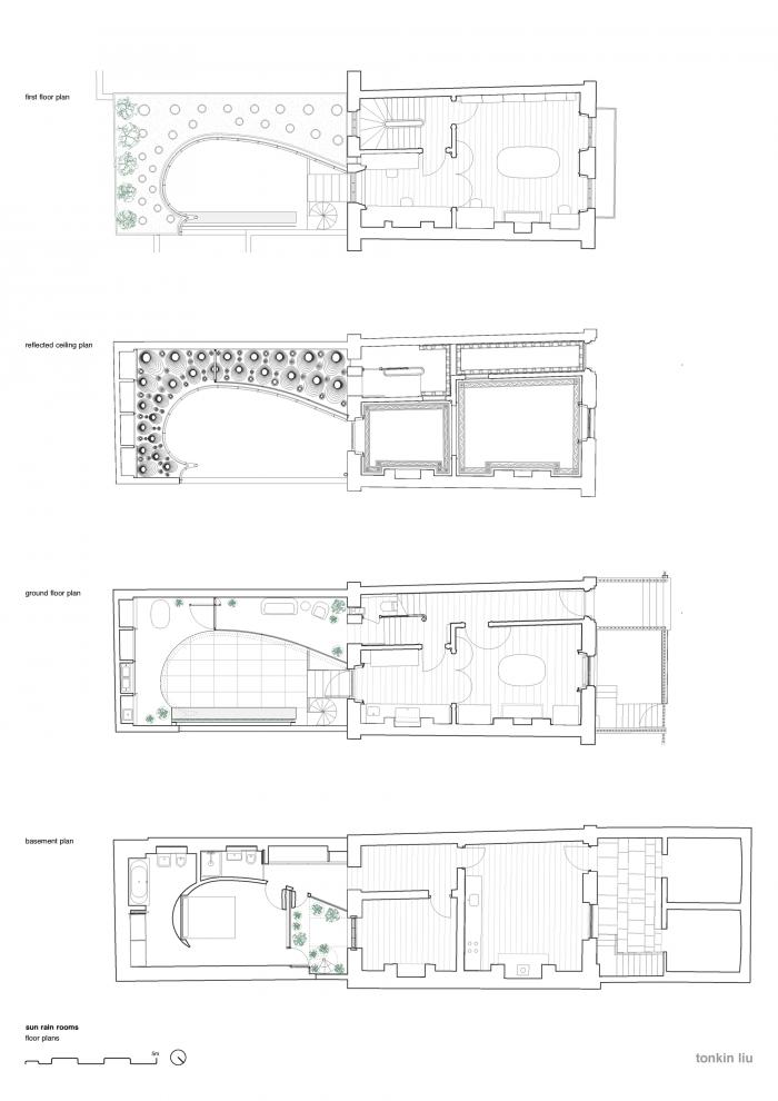
晴雨屋的主体是一栋两层楼高的格鲁吉亚排屋的扩建,建筑师在这栋珍贵的二级遗产的背面进行了重组和扩充。延伸的部分沿用了原本的材料风格,重新强调了建筑的后院。建筑是由 Tonkin Liu工作室与本地匠人合作设计完工的,它既是一个工作室,也是合伙人的家。原始的后院围墙撑起了复合板制成的屋顶、为了尽可能让阳光倾入天井,纵横墙体都根据日照肆意扭动。
△ 概念分析
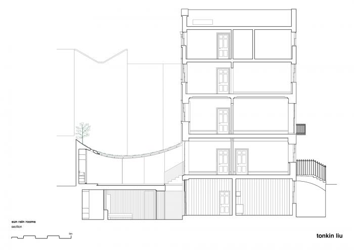
下雨时雨水顺着屋顶蜿蜒而下,流入沿着凹型屋顶装置的水管里,最终汇入蓄水池中。在巧妙的操控下,蓄水池可以溢满整个天井。在天气好的日子里它就像一枚镜子,镜花水月,岁月安好。屋顶的厚度为1.1米,它像一个隔热层,上面有许多大大小小的圆形天窗,形状与雨滴落在水面上的图案交相辉映。下雨的时候,圈圈圆圆圈圈的波纹是坏天气下的小确幸。在这小小的延伸屋顶下,平淡又诗意的工作和生活有条不絮的进行。面对天井的阳光房在工作时是别有洞天的会议室,闲暇时则是最棒的放松场所。
△ 屋顶方案分析
面对天井的另一面是一堵镜面墙,墙后的小天地包括了厨房、工作间、储藏室、盆栽棚和用于种植屋顶小树的土壤。
底下是扩张了的地下室,起居洗漱都在这里进行,卧室还正对着一个小小的光井。精心设计的光影变幻,底下的景致同时也是一群标本植物的港湾。在晴雨室里,春意盎然的屋顶、波光粼粼的池水、层层叠加的都市花园都让人们回归自然,融入自然,敬畏自然。
建筑夜景:
设计图纸
△ 区位图
△ 平面图
△ 反射天花平面
△ 纵向剖面
△ 纵向剖面
△ 横向剖面
△ 剖面细部
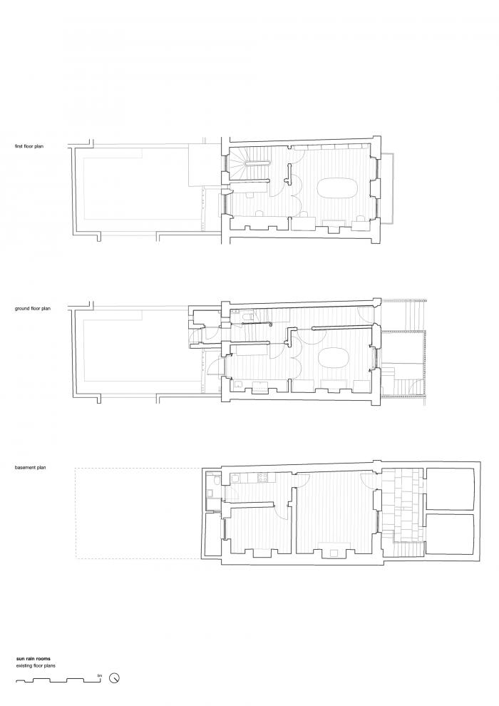
△ 原建筑平面图
△ 原建筑剖面图
项目信息
项目类型:独立住宅,加建项目
项目地点:伦敦,英国
建筑事务所:Tonkin Liu Architects
面积:80m²
项目年份:2017
摄影师:Edmund Sumner,Greg Storrar
厂家:Allgood,Altima,BBS,BBS Brick and Stone,CNC,Cantifix,Decospan,Felicity Jones,Grymsdyke Farm,James Latham,Liquid Waterproofing,Sky Garden,Steyson,Tim MacFarlane,iGuzzini
结构工程师:Rodrigues Associates; Tim MacFarlane (glass staircase)
总承包商:Camden Carpenters (main contractor); Jim Mustil (plywood roof contractor); AY Construction (basement contractor)

BIM建筑网






































![BIM建筑|商业社区,Bradbury 工厂 / [Y/N] Studio-BIM建筑网](https://www.bimkk.com/wp-content/uploads/2023/06/8708025ee511d7b-380x250.jpg)