序
2019年, “海边的大孚”系列校园的第一所海洋主题幼儿园落地;今年,“海边的大孚”的故事再一次展开,在这座充满韵味的海边城镇,第二所海洋主题幼儿园迎接孩子们的到来。
我们以海洋之名,将最真诚质朴的心思融入于设计中,用合适的设计、舒适的空间,注解孩子们成长的点点滴滴。
△ 海边的大孚”系列校园第一所:三门大孚双语幼儿园
△ 城市鸟瞰
海边的大孚
2017年,思序设计团队受邀参与设计了由上海交大教育集团运管,台州社发集团投资的位于台州三门的系列幼儿园。三门是一座美丽静谧的海边小城,我们从海洋元素提取设计灵感,为这一系列幼儿园定义了共同的主题——“海边的大孚”,打造一脉相承的海洋系列校园。健跳大孚双语幼儿园是该系列的第二所,坐落于风景优美的海边城镇三门县健跳镇。
△ 区位分析图
健跳素有“鱼米之乡”、“海国山城”之美誉,其西部低山环绕,丘陵起伏,东部则海涂辽阔,平展如镜。在这样一座得天独厚的海边小镇,处处彰显着大自然对她独特的关照。每一个清晨,天空渐渐泛起微光,淡淡的晨雾笼罩着这片山海,云雾缭绕、海天朦胧,美如诗篇。
△ “海边的大孚”系列校园第二所:三门健跳大孚双语幼儿园
在航船的甲板上眺望大海
初见园区地形,设计师面临最大的难题便是,如何在有限的空间内,营造最合理的空间布局?这座大体呈长方形的园所,在其9600㎡的用地面积上,需要配置15个班级和丰富的共享活动空间。在原有的地貌结构不进行大调整的基础上,设计策略将园所设计成由上而下层层递退的平台,于间打造柔和环抱的中央庭院。具有延续性的绿色空间场地,是整个幼儿园与自然的连接,既改善了全园的采光环境,又赋予了孩子自然奔跑的空间。
△ 建筑方案体块演变
基于需求、满足功能的前提下,这一逐层向下递减延展的阶梯结构建筑,体量达7800㎡。其后再结合主题、引入本土地理特征,设计以健跳海洋文化为依托,将千百年来海洋文明中与人最为接近的结构代表——甲板作为这所学校的“身份”。在以船、板的理念构成建筑形态上,进一步以“陆地上的甲板”为概念,将这所学校赋予了全新的形象——“眺望大海的甲板”。在带着孩子自由航行、开阔眼界的旅途上,那踩在脚底坚实的甲板,是孩子们最安心、可靠的所在。因此,一座 “启航的城市甲板”诞生了。
△ 设计概念演绎
△ 园所为“启航的城市甲板”形态
△ 从周边农田远眺园所
从花园走进船舱
为了最大程度确保孩子们的安全,园所采用人车分流、动静分区的交通流线系统。人行入口为宽敞的聚集场地,孩子在此与家长告别后步入园,所见便是椭圆环形中央绿地庭院空间。它作为整个园区最不可忽视的一片区域,具有强化集聚的效果,是建筑的内在核心。
△ 一层流线分析
△ 园所主入口人车分流
△ 从入口直接进入中央庭院
△ 中央绿地庭院空间
中央庭院的流动路线由草地、木平台勾勒一气呵成。建筑各层设置交互环游式体验路径,串联起庭院与室内空间。这个外部围合、内部自在的空间,让孩子们在游览学习中,提升空间逻辑和方位感,感受到群体的亲密和联结,并能在建筑赋予的能量中,感知脚踏的土地和自我的关系,启发更多天马行空的思考。穿梭在花园的环形线路可以指引孩子们走进园所大堂。
△ 交互环游式体验路径
△ 游玩学习的场所
曲线海浪和明亮跑道
园所大堂设计基于船舱的形象抽象变形而来,空间安全通透,光线饱满柔和,这是师生家长休息停留的场所,更是具有流动感的舞台,孩子们可以环绕立柱进行互动游戏。顶面曲线灯带与地面的弧线相呼应,延展了室内的空间感和安心的包围感,顶部圆形灯和墙面圆形凿洞细节隐喻着海水的气泡,童趣又深邃的设计、也是对海洋文化的独特致敬。
△ 船舱形态的园所大堂
△ 大堂光线饱满线条柔和
△ 孩子们环绕立柱奔跑互动游戏
幼儿园另一不可或缺的区域——多功能活动阅读室,在这一空间内,设计运用海浪的曲线消隐了常规建筑中L型折角的突兀,原木质材料的温润感创造出质朴又亲切的氛围。书架不规则的摆放,置于孩子们随手可拿取的高度,在寓教于乐中学习成长,是这个空间最好的诠释。
△ 多功能活动阅读室
△ 可静可动,孩子们开心学习成长
园所内部设计同样贯彻海洋主题,整体空间设计极尽简约又专注细节。在色彩和材质的考量上,以渲染沉静的白色和生态自然的木色为基调,原汁原味还原独特自然气息之美;地面、墙面和软装采用契合环境主题浅海蓝色,自然地遐想在建筑内部萦绕。在天气晴好时,阳光伴随着海风在墙面折射出斑驳光影,令空间敞亮、干净,又具备无限的想象力。
△ 简约明亮的室内
△ 一层走廊开设天井迎接上部自然光
每一间教室每一个空间,利用一切条件,引入自然采光。于园所一层走廊开设天井迎接上部自然光,消隐室内外的界限,赋予走廊空间通透感。在二层与三层通高的中庭,布置大面积的侧面落地窗,一天不同时段的光晕投射在空间内,塑造的光影变幻让氛围充满活力和未来感。墙面嵌入一些趣味小尺度空间,孩子们在这片模拟海水抽象形态的明亮纯净小世界,尽情奔跑玩耍。
△ 二层与三层通高的中庭空间
△ 孩子们在这明亮纯净小世界尽情奔跑玩耍
在各层甲板间穿行
包裹一层中央庭院的建筑形态为层层退台,营造出了多层活动平台空间。在每一层平台的不同方位,均布置户外楼梯,将通行和活动的功能融为一体。从视觉和交通流线上增强了上下层的通透性,为孩子们构建出一个立体垂直的户外活动场,既有适合跑跳的开阔空地,又有引人探究的通幽曲径。
△ 层层平台的立体垂直交通分析
△ 二层宽阔平台空间
△ 一层中央庭院空间
宽敞的走廊和平台丰富了活动属性,再结合交错布置的公共功能打造丰富的环游路径。各层的建筑开口将来自海边的地形风导入室内,结合侧天窗,使整个园所形成具有良好自然通风采光的舒适小气候。
△ 从二层宽敞的走廊看一层庭院
△ 从二层通往三层的楼梯交通空间
用一条鲸鱼定义庭院
在园所西侧,大片的户外场地承载着探索和运动的功能。设计用一条“鲸鱼”定义园所西侧的大片户外场地,自然草地与塑胶地坪相结合,孩子们在跑动间,将不经意发现精心配制的海洋主题设施小品,沙坑、岩洞和蓝色跑道的设计还原了海边城镇的生活风貌。丰富有趣的运动设施,引导儿童去攀爬、滑行或随风起舞。
△ 海洋“鲸鱼”元素演变应用
△ 从西侧户外场地看向建筑
当天朗风清、阳光和煦之时,孩子们在“甲板上”嬉戏玩耍,建筑空间本身的限制仿佛消失,孩子们奔跑在属于他们的土地上,感受海风轻拂、领略着海的呼吸。
用柔和的线条拥抱孩子
与“城市的甲板”相得益彰的是幼儿园建筑设计的柔和包裹感。整个园体以多层建筑半围合出一个内向空间,让孩子们在园内生活、玩耍和学习时,免于外部嘈杂的干扰。而建筑主体外墙使用的白色灰泥,简约环保节能又能为整体的空间带来更多的明亮。中间辅以深灰色横向线条,与白色主调形成鲜明对比,并点缀少许亮色,为园所增添动感活力。
△ 幼儿园二层甲板平台空间
△ 建筑立面层层退台
建筑立面统一整齐的窗位,形成通透、有趣的室内外关系,确保最大时长的日照于建筑体内。层次丰富的建筑将园所功能做了充分有效的划分,北侧入口的广场、西南面片区的户外场地、自然生成的入口绿地、层层的空中活动空间以及屋顶活动平台,让孩子能在建筑中安全的穿梭奔跑,如同在甲板上眺望对岸,随时随地领略新的风景。
△ 建筑立面
给孩子一个可以承载记忆的幼儿园
幼儿园不仅仅是一个单纯教学空间,是孩子从小家到大世界的过渡场所,也是承载他们童年最无忧记忆的珍贵容器。我们用艺术化抽象化地提取孩子在这片土地上的人生最初的自然记忆,落实在园所的每一处空间与细节,用自然联想的方式,启发孩子对于空间的思考。期待这所幼儿园,作为孩子一生远航的“甲板”,坚守呵护儿童与生俱来的想象和创造天赋。
△ 孩子们在园所开心奔跑玩耍
三门大孚健跳双语幼儿园是思序“海边的大孚”系列园的第二所,也是我们探索利用主题理念打造一体化园所设计道路上的实践案例。我们强调将本土文化和区域特色的点滴融入建筑内外,用专业化一站式的设计打造浑然一体的园所。而进一步的愿景是,通过一体化的设计增加校园建筑的影响力,实现以点带面成网的形式,从而逐步改变整个城市的教育面貌。
△ 孩子们在园所开心奔跑玩耍
用合适的设计、舒适的空间,注解孩子们成长的点点滴滴,我们一直在努力实践。
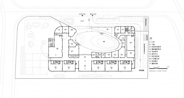
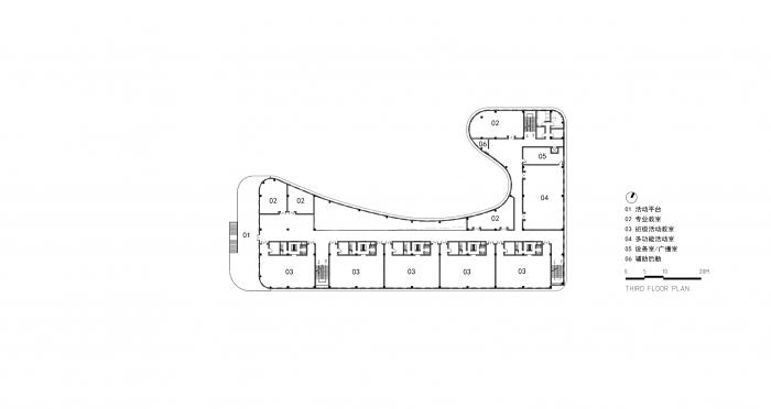
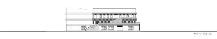
设计图纸
△ 平面图
△ 一层平面图
△ 二层平面图
△ 三层平面图
△ 四层平面图
△ 屋顶平面图
△ 南立面图
△ 北立面图
△ 东立面图
△ 西立面图
△ 剖面图
△ 剖面图
项目信息
项目名称:大孚健跳双语幼儿园
项目地点:台州三门
业主单位:台州社发教育投资有限公司
设计单位:上海思序建筑规划设计有限公司(建筑、景观、室内一体化设计)
主持设计:王涛
设计团队:戴庆辉、黄才、高崟、高畅、卢琴、龚雨华、司迪、陈静、屠夏青、王振、李京捷、张亮、陈捷、王利尹、张中瑛
合作单位:上海都市建筑设计有限公司(建筑施工图)、上海精典规划建筑设计有限公司(景观、室内施工图)
项目面积:9600㎡
建筑面积:7800㎡
竣工时间:2020年
专业摄影:吴清山

BIM建筑网

















































