深圳红树林湿地博物馆(中国红树林博物馆)是由国家林草局与深圳市人民政府共同建设的国家一级博物馆。在此国际竞赛中,由深圳局内建筑,北京普罗建筑,以及深圳柏涛景观组成的设计联合体在国际近百家机构中脱颖而出,入围第二轮决选。我们选择利用此次机会,提出一种人文与自然相融合的深圳未来城市构想。
在深圳当下巨量的城市公共文化设施建设中,博物馆除了成为“城市艺术品”,能否也成为一个开放的,均质的,人文化的基础设施呢?在场地地铁上盖基础设施之上,我们又做了一个新的“景观基础设施”。通过模块化的结构与功能体,新的红树林湿地博物馆是一个“生长中”、“变化中”、“可穿行”、“可占据”的新的“市民空间”与“自然公园”。
△ 博物馆鸟瞰
红树之翼-一个作为景观基础设施的新城市理想
△ 黄昏鸟瞰
红树林博物馆规划范围总面积约13万㎡,总建筑面积约3.95万㎡,是深圳市未来重要的文化及公共服务设施之一。而主体建筑将坐落在深圳地铁9号线侨城东车辆段上盖,侨城东车辆段地块整体已完成建设,在设计中需利用上盖设施激活区域,但此处荷载受限且有许多条件限制。
我们以一种简洁轻盈的方式介入场地,让场地成为城市与自然的连接场所,保证功能的同时减少建筑体量的压迫感,同时顺应原有结构体系合理运用模数化构成整个结构与空间。
△ 概念图
我们通过最经济的结构处理方法,将原上盖结构柱升起,形成博物馆空间网格框架,同时通过横纵方向基础设施分隔墙体,形成有秩序又丰富的建筑空间体系。
△ 分析图
△ 分析图
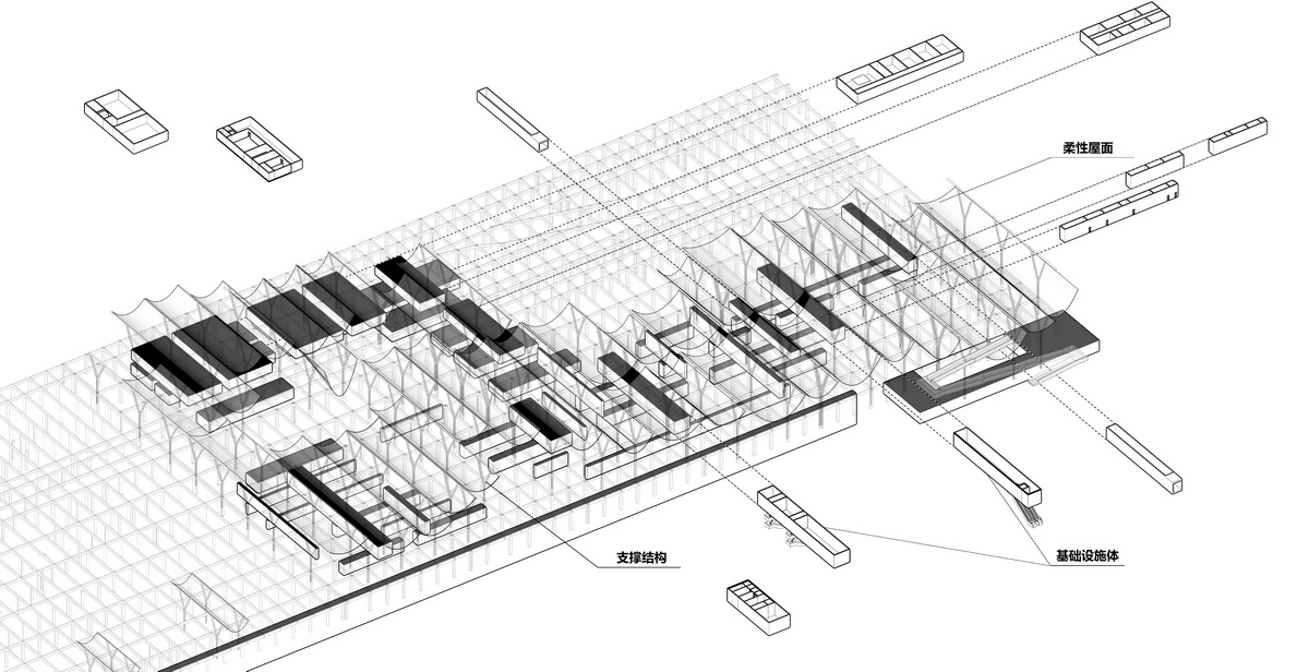
如同红树林湿地里的泥土,树茎与海鸟,共同形成了一个“自然的建构系统”。基座提供了地面景观公园式的丰富性,支撑将竖向空间进行了沟通与连接,分割,而遮蔽则提供了阴凉舒适的气候,使公园成为市民可活动的空间。
基座
由于荷载受限,于是我们采用了两段式的结构系统策略:首层至二层地面,采用较轻的钢框架结构,沿现有的柱位向上延伸,不做转换,确保荷载均匀分布;二层以上则采用更大跨度的轻质钢结构框架系统,悬挂轻质的装配式屋面进一步减轻新建筑的自重。
△ 分析图
△ 分析图
支撑
由“均质加建支撑结构”、“纵横预制单元化基础设施体”、“柔性屋面覆盖”所组成的灵活空间建构系统,在这样的空间体系上方,由“Y”形柱支撑的如集市棚子般的柔性屋面单元。
基座提供了多样的地面景观,支撑沟通连接了竖向空间,而遮蔽则提供了阴凉舒适的环境,使公园成为市民的活动空间。
△ 剖轴测
△ 分析图
博物馆的景观采取自然生态的渗透方式连接室内外空间,打造建筑-室内-景观-红竹林一体化设计,旨在建筑与景观交融渗透,也是红树林博物馆特殊的生态意义的衍生。
△ 博物馆内部
遮蔽
悬索屋顶将雨水汇集后自然排落到景观水池中,形成雨水收集的动态体验和自然排水形成间歇性的瀑布景观,为其提供了轻松的交流氛围以及戏剧化的展厅光线。
△ 雨落景观水池
△ 功能布局
△ 博物馆入口
△ 博物馆入口
△ 东侧湿地公园
△ 湿地景观
△ 轴线分析
东侧将成为博物馆的公共停车场,在停车场之上,将建设一个科普湿地公园。一条蜿蜒的人工湿地系统将由东向西贯穿博物馆内庭院,联系东西两个公园。
△ 博物馆中庭
为了更好的带来游览体验,利用了景观水系人工湿地系统将由东向西贯穿博物馆内庭院,联系东西两个公园使得建筑外的空间更加连贯。
△ 景观总平面
△ 建筑与景观分析
△ 水循环
红树林湿地博物馆应该是一个可以变化和生长的体系,通过博物馆的建筑本身,市民可以体会到的是场所与人文,是交流与自由,是包容与希望。
△ 红树林夜景
△ 功能分布
△ 一层平面
△ 二层平面
△ 点击视频,了解更多

BIM建筑网




























