背景和场地:南昆山国家森林中的艺术民宿聚落。
从场地和传统出发,建立新的图景,它蕴含记忆,更指向未来想象。
项目位于南昆山国家森林公园一个海拔800米的山谷之中。场地原有5栋建于90年代的砖木结构度假别墅,以极低密度的布局方式,平衡建筑与自然之间的关系。作为艺术民宿聚落中的公共空间,新建筑需承载艺术策展、品牌发布、餐饮聚会等活动,作为多元功能的发生器。
我们用人字屋顶作为形式原型,回溯洞穴原初的空间形态,力图营造一个蕴含记忆,面向未来的空间。人字屋顶演进而成的屋面,包裹犹如洞穴的流动空间,承载着未来的无限想象。
△ 嵌入森林中的艺术聚落
△ 晨雾中静谧的艺术餐厅
连续演变的坡屋顶,漂浮于森林之上,如一叶扁舟,承载着对未来的无限想象。
△ 传统原型的拓扑演进;建筑与空间同步完成
我们将原有建筑的人字屋面作为拓扑原型以回应场所记忆,在建筑面向湖面,森林和道路的三个方向设置人字屋面,让自然引入内部空间,将其分别连接,形成连续蜿蜒起伏的屋面,漂浮于森林和湖面之上。连续的屋面也自然形成内部的腔体空间,自然景象,水光波纹,人们的活动,都在自由流动的空间中发生和展现。
人字屋顶演变而来的新屋顶形式,在我们记忆中,是熟悉的,同时也是陌生的,因为它创造了全新的空间体验。
△ 建筑生成过程-从场地到室内空间的演化
△面向湖面、森林和道路的人字形屋顶连为一体,以轻盈的姿态置入场地
△ 人字形屋顶演变而成的屋面
△ 庭院
建筑的内部空间和外部造型是同步完成的,多向变化的屋面形成内部既连续而变化的空间。旋转楼梯在整个平面的中心联系起上下两层空间,成为空间中行为活动的显现。连绵起伏的天花空间,附以艺术肌理质感,营造出自然洞穴般的空间氛围。
△ 各个空间的活动在统一的大屋面之下发生
△ 连续变化的外部形式转换为内部空间
△ 连续的屋面与连续的景观
△ 螺旋楼梯成为空间中活动的显现
△ 入口空间-外部弧形墙体延续进室内空间
△ 静谧的对话空间
材料
钛锌板瓦的运用既是对传统的回应,也是对当下的彰显。深灰色屋面,让建筑体量在环境中更显沉稳和内敛。灰色艺术肌理漆,营造出洞穴般的空间氛围。让光、水纹、森林景观都在空间中交织呈现。
结语
南昆秘境艺术餐厅落成后,已经举办了多场活动,参观人员和前往考察的各个乡镇部门络绎不绝。从建成后的热烈反响可见,南昆秘境艺术餐厅已不再是单纯的一个餐厅空间,而是一个集展览、演出、餐饮和休闲的多元复合场所,也是一个当地居民和城市人群共享交流的平台。
△ 剧院般的共享交流空间
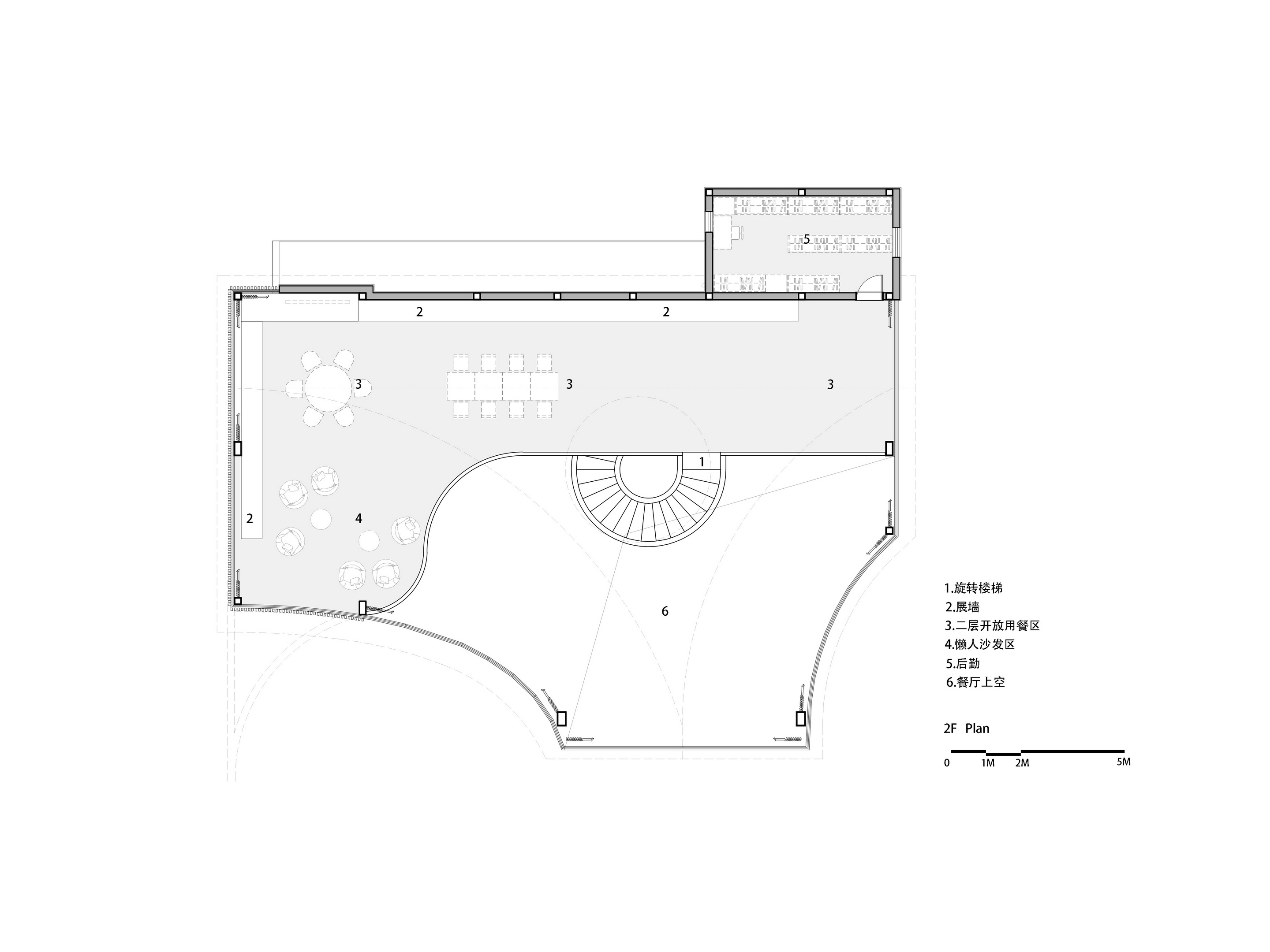
△ 二层平面图
△ 剖面图
项目信息
项目名称:南昆秘境艺术餐厅
业 主:惠州市爱树文旅投资发展有限公司
设 计 方:广州城外建筑设计有限公司
公司网站:www.ual-studio.com
联系邮箱:[email protected]
设计团队:陈洁琦,林旺铭,沈莹颖,翁雁华,黄毅源,陈振辉
灯光设计:广州市恒光设计有限公司
施工团队:广东德信众诚建设工程有限公司
摄影版权:潮声@Anson
项目设计&完成时间:2019.10-2020.10
项目地址:广东省惠州市南昆山国家森林景区
项目规模:352.5㎡
品牌:主要材料:钛锌板瓦/艺术水泥漆/高密度波纹板

BIM建筑网





















