2020伊始,面对无法外出旅行的生活,还有一件事情可以让我们的精神飞向远方,跨越时间与地域的限制与先人贤者进行交流,那就是阅读。书店+的模式很难适应如今的社会环境,而纯粹为了拍照打卡而生的网红项目又不是我们设计的最终目的。在唯一的一次线下沟通中,业主和设计师达成一致:书店需要回归本质,书店的设计最终要需要回到读书这件事情上来。一个文明穿越时空来到一个陌生的宇宙,一艘飞船降落在一颗未知的星球,建立起营地探索全新的世界,整个书店空间是新人类遨游于知识宇宙的一场旅行。
△ 庭院外景 ©三棱镜
功能空间策略
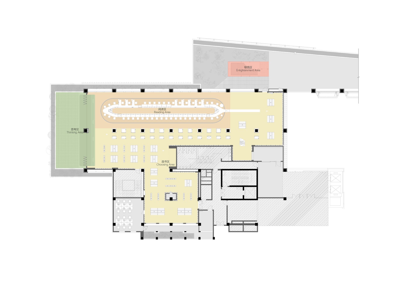
为了营造一个纯粹的阅读空间,设计师把一切会发出声音的功能(餐食饮品制作,用餐及交流等)全部集中在楼上,作为另一个独立的项目“古星院”来考虑,上下两层楼在内部仅仅只通过一部传菜梯进行连接,保证书店的绝对安静。书店内部,不同于大多数项目对于空间丰富性的追求,项目选择了以一个通透开敞的大空间作为主体的设计手法,让人们在自由游走的时候也会随时随地“被看到”,在设计中大量采用了“物体”来划分空间,而不是“墙体”。物体四周形成的“柱状空间”适合人们依靠停留,但并没有“洞穴空间”带来的包裹感,起到使人们的言行举止“被约束”的作用,当处于30米范围下若干人视线范围内时候,几乎不会有人会大声喧哗。
△ 飞船书吧 ©三棱镜
△ 弯曲花园 ©三棱镜
结合业主方多年书店运营的经验总结,我们一同深入拆分了知识获取的步骤及相对应的空间。1. 选书—知识的寻找—书架导航系统。 2. 读书—知识的摄取—飞船书吧。 3. 思考—知识的消化—弯曲花园。4. 顿悟—知识的内化—红色陨石。
△ 轴侧图
△ 功能分析图
△ 书店入口 ©三棱镜
△ 入口空间 ©三棱镜
场景营造 — 书架导航系统
一次全新的书籍分类探索。每一本书都应该可以很方便地被触碰、翻阅,而非把书籍用作装饰,这是对于书籍最基本的尊重。不论是书架还是书岛,所有的书本全部面向读者,让人们可以十分便利地与书的封面产生互动,大大提高人们寻找知识的效率和兴趣。
△ 书架导航系统 ©三棱镜
书架头顶灯箱的不同符号界定了不同大类的主题内容分区,同时单体书架对主题进行细分,不同于传统的按学科的书籍分类方式,在同一个书架上针对同一个话题可能会出现文学、旅游、科学技术、人物传记等不同“类型”的书籍,用if you like, you will like的陈列方式引导人们发现潜在的可能感兴趣的书籍。
△ 书架导航系统 ©三棱镜
△ 从飞船书吧看向书架导航系统 ©三棱镜
场景营造 — 飞船书吧
作为整个书店唯一的阅读区,飞船书吧位于整个书店的主轴线上,既是一个巨大的物体,也是一个大空间中的小空间。飞船的造型象征着旅行,木纹材质象征着“亚当宝树”,透过巨大的舷窗可以看到外面的风景。
△ 飞船书吧 ©三棱镜
飞船两侧搭载乘客,中间是服务人员通道范围服务全吧台,保证每一个读者都可以被服务到。座位与座位之间的隔板保证了各自的相对私密,每位乘客的座位都配具了专属的充电接口与小台灯,坐下时,飞船乘务员会走到面前,悄悄打开头顶的阅读灯,并随时为您服务。
△ 飞船书吧 ©三棱镜
场景营造 — 弯曲花园
一个文明在探索一个未知宇宙的一开始是极其谨慎的,只能坐下向外观望,而不能涉足的景观设计提供了一个坐下思考的场所,让人们静下心来观察,并唤醒对外部自然环境的敬畏之心。混凝土网格的弯曲和镜面效果的叠加象征着无限延伸的弯曲空间。
△ 弯曲花园 ©三棱镜
场景营造 — 红色陨石
从“飞机窗”望出去,一边是绿意盎然的地球,一边是连接时空的巨大红色陨石。红色陨石是通往楼上古星院的步行通道,经历了阅读吸收的新人类进入陨石,穿越,顿悟,到达上层开始与人讲述与交流。
△ 飞机窗 ©三棱镜
不标准的异形设计给原本平平无奇的空间增添丰富的趣味体验,光芒样式的镂空的红色钢板在楼梯通道内呈现不同的光斑效果,与飞机窗和飞船结合,贯穿整个空间,组成了只属于南之山·古腾堡星汉书店的星际遐想。
△ 红色陨石 ©三棱镜
△ 陨石内景 ©三棱镜
结语
今天,当飞船吧台需要排队入座的时候,我们看到所有的家长们都在自觉控制小朋友的音量,看到了一个心目中可以安静阅读的书店,看到了书籍的销售良性上涨,得到大量积极反馈,在吸引眼球的同时真正成为了一个市民愿意前来阅读学习的空间。
△ 空间涟漪 ©三棱镜
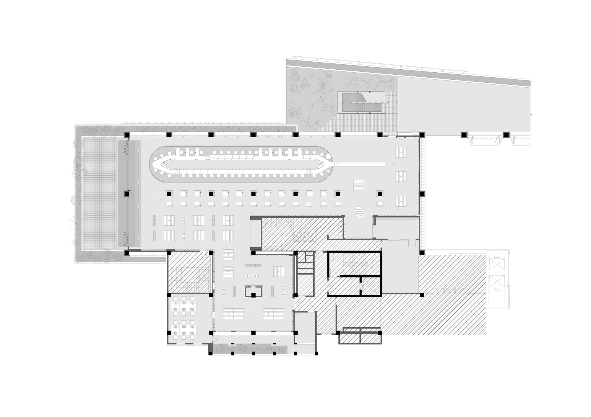
△ 平面图
△ 飞船书吧展开轴测图
△ SEC吧台
△ 红色陨石展开轴测图
项目信息
项目类型:商店
项目地点:重庆,中国
设计方:未韬建筑
面积:750m²
项目年份:2020
摄影师:Prism Image
厂家:世好佳艺术彩涂,熙呈照明,美喆石塑地板
主创设计师:李未韬、李博+Giorgio成于思
设计团队:张鼎、易思琦、丁明新、陈煜娴、邓林
委托方:重庆南之山文化产业发展有限公司
施工:重庆国恒建筑装饰工程有限公司

BIM建筑网































