△ 夜景鸟瞰
“尘曦”民宿是一对80后夫妇在中国大陆东端岛屿的理想家园,民宿原为岛中央山腰上的一处原生的石头民舍。坐看潮起云涌、历经风雨洗礼,石头民舍成就了质朴的海岛文化和岁月沉淀的美。而“在地民居”和“自然肌理”正是 “尘曦”民宿设计的切入点。
△ 景鸟瞰
△ 夜景主立面
本案最大程度地保留了老建筑的石墙、木楼板和木屋架、灰瓦的坡屋顶,营造朴素原生的居住空间。同时,在一层入口插入白色体块,使原本分离的公共空间串联而具有纵深感;在大堂中央设置室外中庭,调节采光和气氛;通过框架结构,在三层架空多个白色体块,并对应景观使其方向做了扭转变化;三层以上形成屋顶平台,以满足无边泡池、露天剧场、聚会空间等配套功能。
△ 日景主立面
△ 入口大门
△ 入口白盒子
△ 阳台
△ 悬挑的新建客房
△ 二层平台
△ 二层平台
△ 中庭
△ 中庭上空
新部分营造当下民宿较高品质的功能体验,老部分保留当地建筑的风貌特征。新老之间目的明确,产生戏剧的对立关系。又依靠中庭、楼梯和挑高的灰空间,将这种分层的冲突模糊并试图调和,最终达到空间上的统一和稳定。
△ 楼梯间花架
△ 楼梯间新老交替
△ 楼梯间白盒子之间
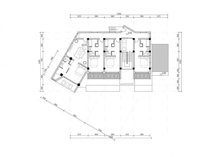
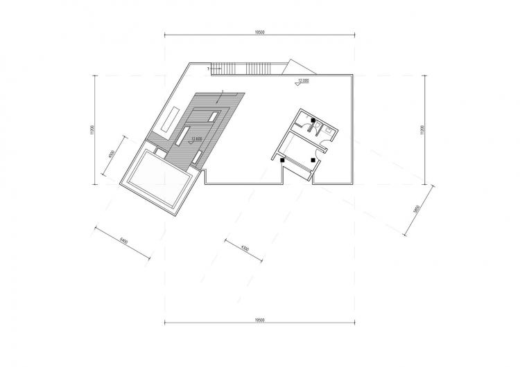
用地面积:456㎡,建筑面积:733㎡。其中,老房面积:318㎡,新建面积:415㎡。包括,9间全海景客房、1间餐厅、1间清吧、1间会议室、1个360°观景平台(无边泡池、露天剧场、水吧、聚会空间)。
△ 屋顶泳池
△ 大厅
△ 会议室
△ 二层客房
△ 二层客房
△ 三层客房
△ 模型©沈圣喆
△ 建造过程©沈圣喆
技术图纸
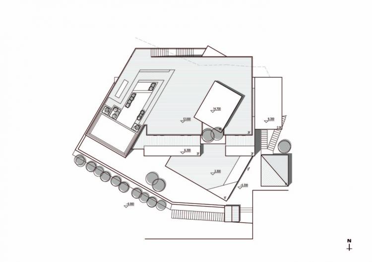
△ 总平面图
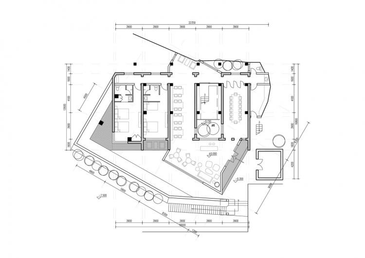
△ 一层平面图
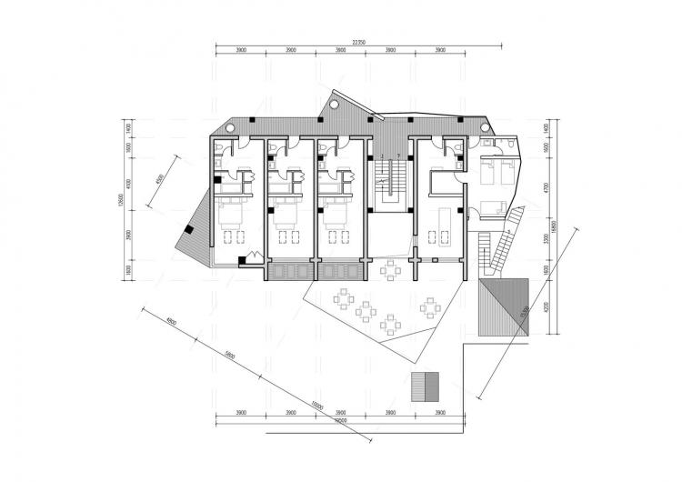
△ 二层平面图
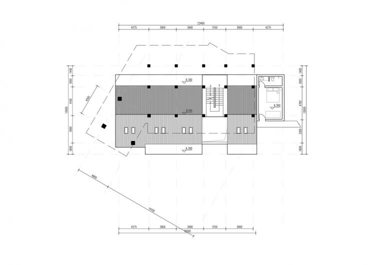
△ 坡顶层平面图
△ 三层平面图
△ 屋顶平面图
△ 剖面图
项目信息
项目信息:青年旅舍
项目地点:舟山,中国
建筑设计:介隐建筑事务所
面积:733m²
项目年份:2019
主创建筑师:沈圣喆
设计团队:郭怡欣、姚永立、肖鹏
结构设计:陈慰
景观设计:沈圣喆、郭怡欣
摄影师:金伟琦

BIM建筑网

































