冠萃国际幼儿园,身处深圳福田区香蜜湖片区。本次项目是一次利用旧的空间场所改造的项目。机构希望将其打造成为一个EYFS为教学理念的高端教育机构。VMDPE圆道设计承接了本次设计项目。
儿童活动空间做为儿童教学及生活的场所,是会随着时间及教学内容的改变,而不断地改变的场所。该项目的教学方,也准备在未来在空间内进行各类教学活动,需要有足够的灵活空间供后期教学使用。所以这一次,空间的包容性是设计的其中一个重点之一。
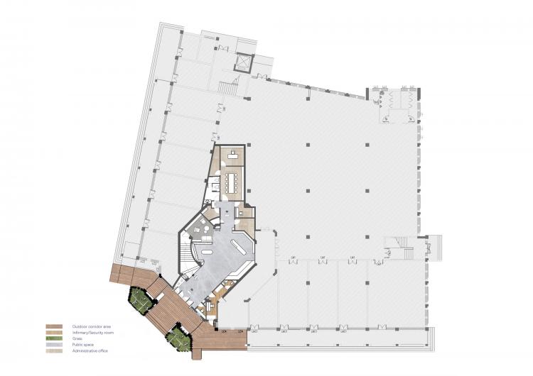
该项目空间功能主体在二层及三层,整体呈一个正方形。四周都有充沛的阳光。一层的面积较小,主要做为项目的主入口以及成人办公及对外咨询的功能。
VMDPE圆道将一层空间赋予接待、安保、谈判、后勤、医务的功能。集中的换鞋收纳区,隔离了室外的灰尘,避免灰尘的扩散。另外一层大厅预留了足够的面积,方便后期儿童在入园晨检,以及大型活动时的集合作用。
进入二层的主空间,呈现出的是一个圆形的开放式的阅读区,天花上有具备调光功能的整体光源,满足孩子们的室内阅读所需的柔和适度的光线。在阅读区的周围,是探索类课程的课室。
二层的空间主体是由二个串联的圆圈区域组成,传过公共阅读空间,会进入一个更的圆形空间内,这个空间是儿童室内公共活动空间,这个空间的周围,分布着八个主课室。
VMDPE圆道一直在探索“消除走廊”的各类方法。其目的是因为设计师认为走廊做为链接各个空间的辅助空间,其主要的作用是秩序的管理,而非自由探索。所以在本次项目中,设计师将链接所有课室的动线做了整理和分配,将所有的走廊面积融合成为了一个大的活动空间。
VMDPE圆道希望能利用这样的空间布局方式,将所有的走廊面积集中在一起,减少了各个空间的连接成本,变为开阔的公共空间。增加空间的功能多样性,激发孩子们可探索的区域。
儿童活动公共空间的周围,散布着主课室对外的信息展示功能,方便家长及孩子们了解各个班级的教学信息。同时在公共空间中还有一个具备游乐及戏剧演出功能的平台,方便为后期多样化的教学内容做好功能的准备。
在儿童的主教学课室内,根据课室位置朝向不同的情况下努力保证了每个空间充足的自然采光和空气流通,以及完善的配套设施,给予儿童最优质舒适的空间。
根据项目的特点,将室外区域规划在了三楼,具备广阔的室外活动空间以及STEAM区,小农场,沙池,戏水区等完整的配套设施,同在三楼的还有具备集会,舞台表演,舞蹈排练等功能的多功能厅。
本次项目对VMDPE圆道来说是一次回归本源的设计,我们希望在更本质的角度思考幼儿园空间的合理设计,抛开那些成人化的审美观念,从温馨,阳光,探索的角度,从包容未来会在空间中发生的内容的角度,做一次简约却充满可能性的儿童空间设计。
技术图纸
△ 一层平面图
△ 二层平面图
△ 三层平面图
项目信息
项目名称:冠萃国际幼儿园
项目地点:中国深圳福田区香蜜湖路3012号熙园
设计时间:2020.4 -2020.7
施工时间:2020.7 -2020.11
场地面积:室内1630,户外旅行700m²
项目状态:已建成
设计公司:VMDPE圆道设计
项目总监:程枫祺,张健
设计团队:韦柱任,邓静余,陆欢,郑通
项目类型:外立面改造与室内设计、景观设计、灯光设计、道具设计
摄影:郑航天

BIM建筑网





















