Penda China近日公布了新作“十里莲江农业科普楼”,该项目以仿生建筑为创作理念,将生态建筑与艺术、文化、商业相结合,作为十里莲江核心区的主要公共建筑,建成后将成为珠海的又一人文建筑新地标性。
△ 建筑外立面效果
△ 屋顶效果
△ 屋顶局部效果
△ 屋顶局部效果
项目位于广东省珠海市斗门区莲洲镇,所在地段珠江西岸是连结澳门、江门、中山等地的枢纽地带。作为十里莲江一期首个落地项目,其农业科普楼承载着科普教育、展览展示、互动体验、服务配套等功能,旨在打造一个集展览、教育、体验和商业于一体的公共文化空间。
△ 建筑侧立面夜景效果
△ 入口局部效果
建筑屋顶不仅是抽象的“莲”的形式提炼,其功能也可以根据使用需求切换。白天的露天剧场成为人们休息活动的平台,傍晚还可以转换为星空影院。剧场周围种植着多种农作物,成为周围自然景观的延续。通过使用者和建筑的互动,增加全方位的体验感受,同时也建立起自然、建筑和人的有机联系。
△ 屋顶剧场局部效果
△ 整体鸟瞰
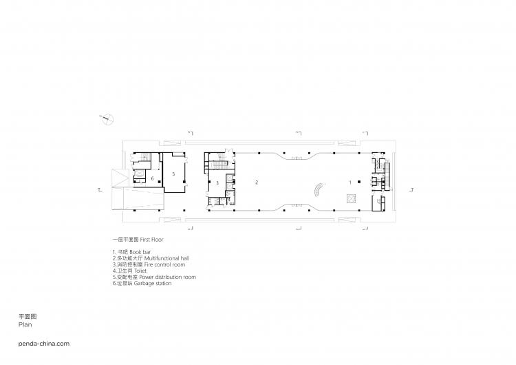
建筑地上4层,地下1层,高24m,由南北2个体块和中央大厅组成。两侧体块结构上形成锚点,屋顶造型采用侧拉结构,创造开阔的挑空大厅。建筑内部兼容了咖啡馆、书店、文创展示、农业主题展览、可举办临时大型活动的大厅空间及多功能厅等空间。
△ 建筑外立面夜景效果
△ 外立面局部效果
△ 外立面局部效果
建筑南北向狭长,东西侧为主要立面和采光面。立面采用百叶构件做遮阳处理,百叶通过数字化设计,每一片都具有不同的角度,呼应光线和视野,同时减少西晒的辐射能耗。
△ 立面局部效果
△ 局部效果
△ 入口局部效果
△ 内部空间效果
“莲”是项目的核心语汇,建筑形态的灵感源自场地北侧的荷花池。建筑屋顶顺应着环境天际线,并以最适宜尺度进行了把控;同时,有机的荷叶造型也是形态仿生设计方法的体现,是功能与形式的完美结合。荷叶造型的下沉点连接着螺旋楼梯,并在室内营造出一种空间张力。屋顶形态对游客形成心理暗示,引导游客拾级而上,开始这场空间漫步之旅。
△ 概念分析图
△ 概念草图
△ 概念分析图
△ 轴侧示意图
△ 概念分析图
建筑的参观动线为:入口——螺旋楼梯——屋顶——展厅——连廊——地面,这一路径形成了连续闭环,访客得以充分参观体验室内的空间效果。
△ 结构分析图
△ 功能分布图
△ 负一层平面图
△ 一层平面图
△ 二层平面图
△ 三层平面图
△ 四层平面图
项目信息
项目名称:十里莲江农业科普楼
项目地点:中国广东省
项目规模:6722平方米
设计时间:2020.06-12
主创设计:孙大勇、万书言
方案设计团队:Penda China / 槃达中国
施工图团队:深圳市博万建筑设计事务所
建成时间:2022年

BIM建筑网





























