古代的时候,学生是在大树下的开放环境中学习。这种理念让我们深受启发,因为它能帮助孩子们与大自然建立起联系。它是一种学习各种生活技能的奇妙方式,为孩子们提供了一个奔跑、跳跃、滑梯、捣乱和自我探索的机会,让孩子们在非正式的环境中进行自我探索。
该学校位于印度拉贾斯坦邦比勒瓦拉的城市中。项目占地2612平方米,设计的重点是为学生建立一个实体,使建筑空间和环境一起成为成功的学习工具。
建筑的外形设计灵感来自于动画片中看到的三角形奶酪条,两侧有小孔;同样,建筑的外立面也有多个小孔。
它是一种学习各种生活技能的奇妙方式,为孩子们提供了一个奔跑、跳跃、滑梯、捣乱和自我探索的机会,让孩子们在非正式的环境中进行自我探索。
每层楼板交错,形成了小型的种植园,产生了有机的结构形式。从远处看,这座建筑就像一个倾斜的花园。
主入口附近是一个开放式的露天剧场,用于晨祷、戏剧和表演等活动。由于地块的大小和项目所需的空间,使得我们的外围空间有限,无法进行必要的户外活动。这使得我们不得不将整栋建筑的屋顶重新设计成一个连接各楼层的斜面花园。屋顶的平坦区域被用作自行车道。
第一坡有两个巨大的定制滑梯;第二坡是整个教学楼最长的坡,有障碍物;第三坡有足够的阳光,有种植园,每个班级有一个菜园,可以自己种菜、种花。这样,孩子们与周围的大自然形成了一种特殊的联系。屋顶最上面有一个丛林健身房,孩子们可以在这里攀爬、荡秋千,远眺整个城市的景色。
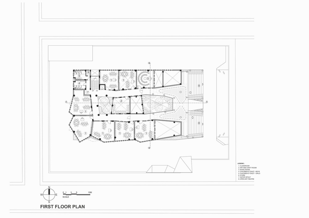
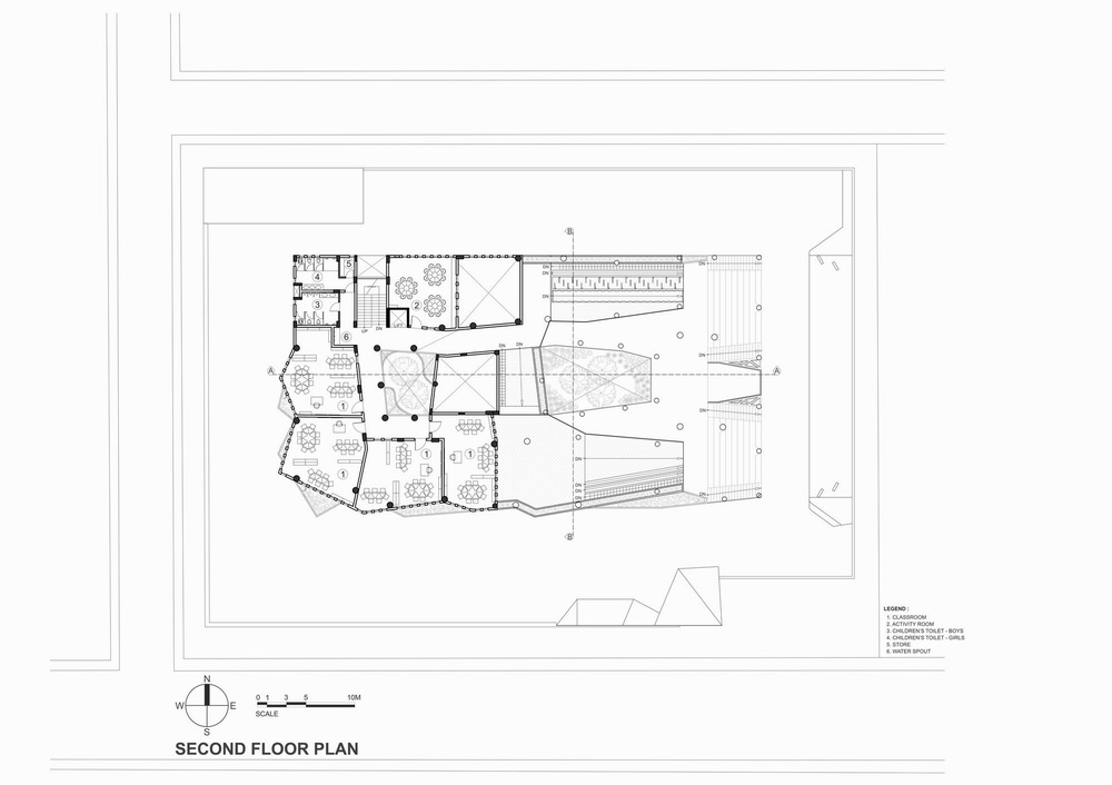
该建筑共三层。建筑形式是高度贯通的,有两个庭院,允许过滤后的日光渗入走廊。
庭院有助于减少热量的获取,并为整个建筑提供有效的空气流通,这对于该地区恶劣的气候条件来说是至关重要的。通过从顶部进入的空气和漫射光,建筑内部保持了凉爽和良好的采光。
△底层平面图
教室的形状和体量都是有机的,不同于一般的长方形教室。双层高的空间被改造成了多功能夹层空间,让孩子们可以在这里玩耍、放松、休闲。为三到七岁的孩子们打造空间,我们的设计理念是:要让孩子们一想到要上学,就会露出笑容!
技术图纸
△一层平面图
△二层平面图
△屋顶平面图
△南侧立面图
△东侧立面图
△剖面图
△剖面图
项目信息
建筑师:SferaBlu Architects
面积:2600m²
项目年份:2018
摄影师:Umang Shah
厂家:Mapei,PUJAN Construction,TOSHIBA,ZWCAD
主创建筑师:SferaBlu Architects
设计团队:Naman Shah, Dhruven Vadhwana, Tarjani Parikh, Ninad Deole, Binal Shah
客户:Sangam Elementary School
工程师:Jitendra Chaudhary
景观设计:Dipen Kharidia
结构顾问:Rutvik Dave
MEP 顾问:Aqua Utility Designs and Management Private Limited
HVAC 顾问:Minesh Shah
市政施工方:Rahul Jain
家具供方:Naran Mistry
HVAC 施工方:Yogi Engineers
标识设计:Antara Bhargava
儿童用具:Uday Krishna
铝制窗顾问:Sanjay Vasani
英语文案:SferaBlu Architects team
西班牙语文案:Victor Garia
City:Bhilwara
Country:印度

BIM建筑网
























