△福州茶馆
福州茶馆的设计灵感来源于约翰·汤姆森(John Thomson)镜头里的福州金山寺。英国著名摄影师约翰·汤姆森是历史上最早到访中国旅行的摄影师之一,用影像向西方传递了东方的风景与文化。在摄影集《福州与闽江》里,汤姆森记录了1871年他沿闽江逆流而上的传奇旅程,并用相机捕捉到了这座罕见的建于河流之中的古寺。古老的庙宇静静地栖息于河流中的浮石之上,这个画面成为了福州永恒的记忆。
△约翰·汤普森,《岛塔》,1871
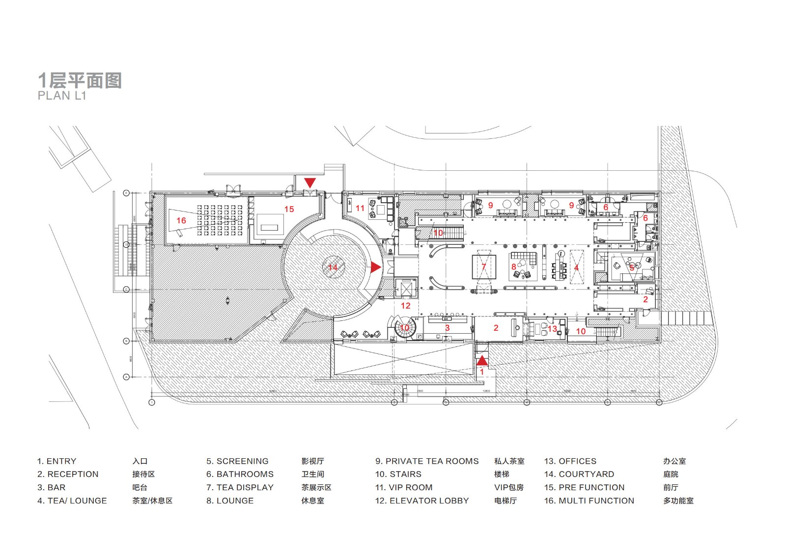
△一楼
如恩用福州的历史文化作为画笔,将这座茶馆描画成了一件城市文物。茶馆内的古代木结构是一栋清朝古宅,典型的徽派建筑。其上充斥着丰富的装饰木雕,复杂而精美。如恩将木结构包裹于新建筑结构之内,成为茶馆的点睛之笔。近年来,城市的快速发展逐渐侵蚀着传统文化与文化认同。在此背景下,福州茶馆的设计不失为一例独特的历史传承。
△一楼
茶馆被设想为休憩于岩石之上的房屋,连绵山丘般的铜制屋顶高架于夯砼墙体之上,且与室内木结构的屋顶线相呼应。设计所采用的主要材料为夯砼,既表达了对当地传统土楼民居的现代致敬,也强调了原始的凝重感。走近建筑时,观者可以看到茶馆的两幅图像:建筑物的直立轮廓,以及周围水池中的倒影。
△建筑外立面
进入茶馆,踱步于一楼的古建筑中,观者仿若游走于明与暗,轻与沉,细与拙之间。光线从天井窗投射到内部结构深处,照亮了这座弥足珍贵的清朝古宅。覆铜桁架将金属屋顶提高了半米的高度,又将自然光影从侧面引入到了室内。走到夹层楼时,古建筑原本的面貌才清晰地得以显露。身处于此,观者环绕在历史之间,赏鉴精湛的木雕工艺。
△一楼
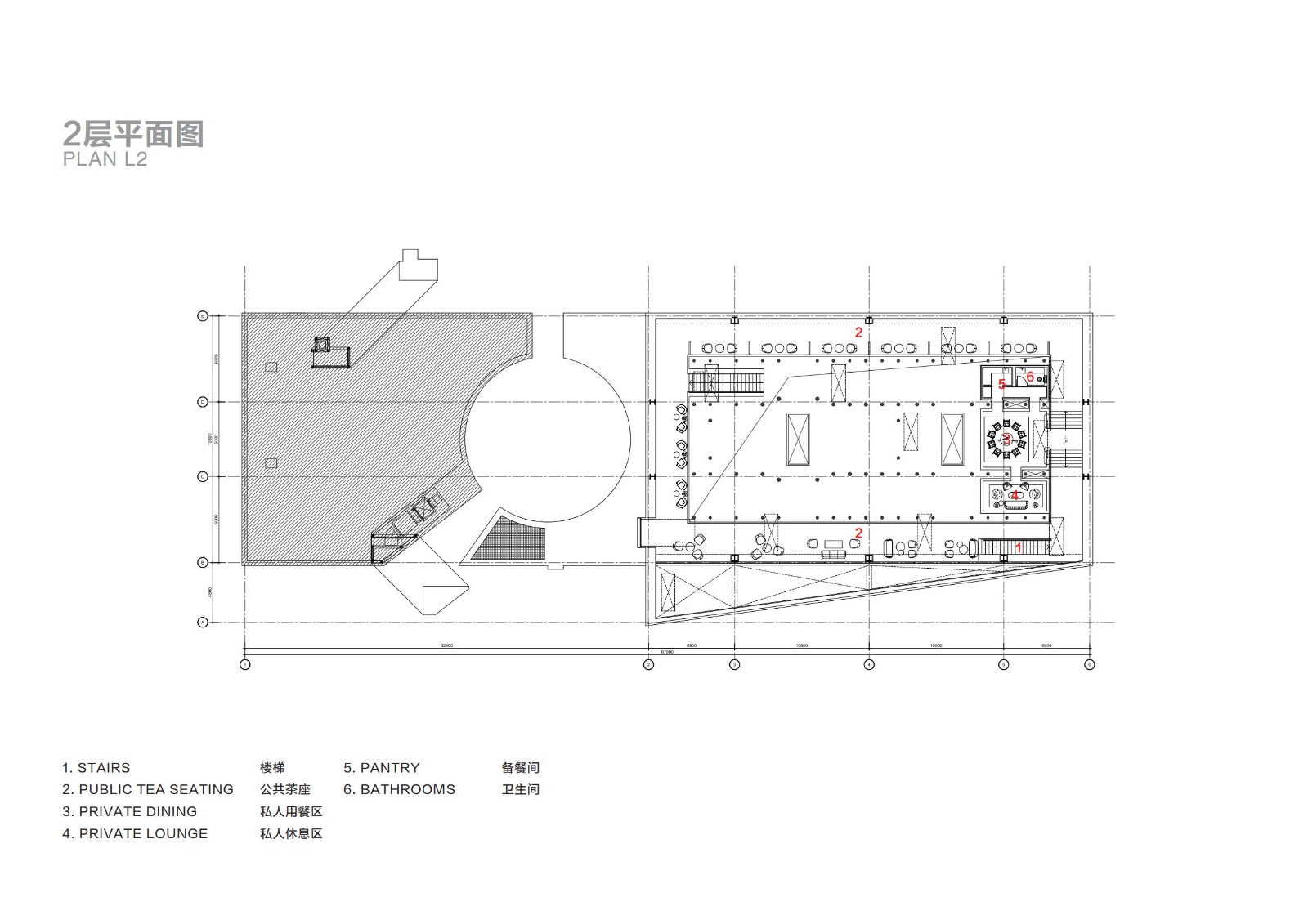
△二楼夹层楼
茶馆在地下一层设有接待大厅、下沉式庭院和品茶室。圆形接待厅的顶部为一楼室外的露天水池。阳光透过水池底部的圆形玻璃投射到地下的接待厅,光影浮动,令人着迷。
△露天水池
△负一楼
技术图纸
△平面图
△总规划图
△草图
项目信息
地点:福州
时间:2021年
客户:阳光城集团福建大区
占地面积:1,800平方米
主持建筑师:郭锡恩,胡如珊
资深主持设计师: Scott Hsu
设计团队: Jorik Bais, 李奕男, 胡云清, 黄永福, James Beadnall, Ivana Li, Jesper Evertsson, Du Shangfang, Bingmiao Li, Evelyn Jiang, Junho Jeon, Ath Supornchai, 辛海鸥, 黄惠子
摄影&影片:陈颢

BIM建筑网





















