唐纳德·诺曼说过:“情感设计分为本能、行为、反思三个层次。”室内空间设计的每一个动作和步骤都是为了引起受众的情感波动。所以我们认为无论是建筑还是室内空间,都要有场所情感,注重空间对人的情绪影响,同时具备对建筑本体、地域文脉、周边环境等的延续性。
△中庭北侧内望 虹矩阵与漂浮窗
ONE |场所情感,漂浮的幻城
漂浮的世界、幻想的城市、多彩的平台、自由的绿岛
情感或许是个空泛的词,但是对于将人与时间、空间相联结的设计师来说,身居其中的情感并不空泛。本案位于长春兴隆综保区内,为文创类高新技术企业提供的办公场所。文创产业孵化类企业的场所精神是什么?创意需无限幻想、工作是多彩快乐的。我们赋予它四个空间氛围。分别为多元、自由、幻想、活力。同时考虑对建筑本体与周边环境的延续性,凝练了漂浮、虹矩阵、次元壁等元素语言。接下来在空间营造上与之对应。在手法上采用无底脚漂浮感设计,并在中庭设置三个悬浮窗。
△元素提取草图
△首层电梯与中庭空间过渡
△多元的休闲阶梯与发布空间
TWO|用空间构建情绪
把整体空间分为核心公共空间、办公空间、交流社区空间、辅助空间四大空间类别,对应其空间氛围与场所精神给予其四种情绪。公共空间的怡然,办公空间的热情、交流社区空间的倾诉与辅助空间的安静。
△二层内望中庭
直线与穿梭序列带来稳定,入口、接待前台、是导向的起点,多彩的虹矩阵显现自由开放的创业态度;弧线、曲面的漂浮窗带来包容、令人放松,在需要面对面长久沟通的接待区、交流、发布区则消除的情绪把节奏放缓,将双方置于舒缓、亲和的场域当中。
△入口处穿梭序列空间,先抑后扬
直与曲当然不是生硬的切割,也非根据功能区进行绝对性的配置,而更多是寻找对立统一的最佳平衡点。直中缀曲,曲中带直,各有侧重,互为配角,是空间维度相互联系的通道。
△漂浮窗细节
THREE|色彩与情绪联结
色彩对人的心理作用是室内设计种不容忽视的重要元素,利用色彩来带动人的情绪并弥补人的性格缺陷,使其空间个性亮相发展。色彩设计还须处理亲近感与距离感的平衡问题,以及更重要的,基于以人为心理感受。不同的色彩引发不同的情感认知,如本案的橙色能激发活力使人产生愉悦感具有振奋情绪功能,黄色可加强逻辑思维能力,白色则代表纯洁可调节人情绪具有重要的平衡情绪作用。木色与绿色则充满成长的生命力可让人情绪放松、稳定缓解眼部疲劳。
△中庭一侧空间的变化
FOUR |材质肌理协同的魅力
材料的相互和谐、层叠、呼应,为情绪的缓释、升起与流转提供了指引。本案选用了大量具有天然亲和性、生命力的材质及肌理,以唤醒知觉、触觉、嗅觉等感官的丰富体验。青灰岗岩石地面,迥别于标准大理石或瓷砖的冰冷感,更为素雅灵动。
木材的大面积律动应用,温暖而宁静;珊影涟漪、细腻层次的阵列,奠定了整个空间的柔和性、优雅度和舒适感。
本案中均考虑了材质的可持续性、环保性、可再生性、可塑性甚至文艺感等优点值得青睐,但其不可测的变数也是设计师须去把控和解决的。
△顶部天井矩阵
△开放式电梯前室空间
△入口处接待空间
△水吧休闲空间
△交流空间内望
△手绘草图
技术图纸
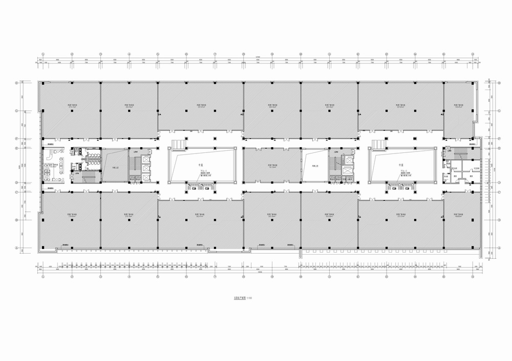
△一层平面图
△二层平面图
△三层平面图
△四层平面图
△五层平面图
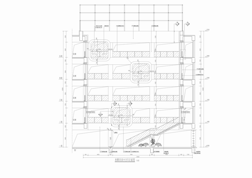
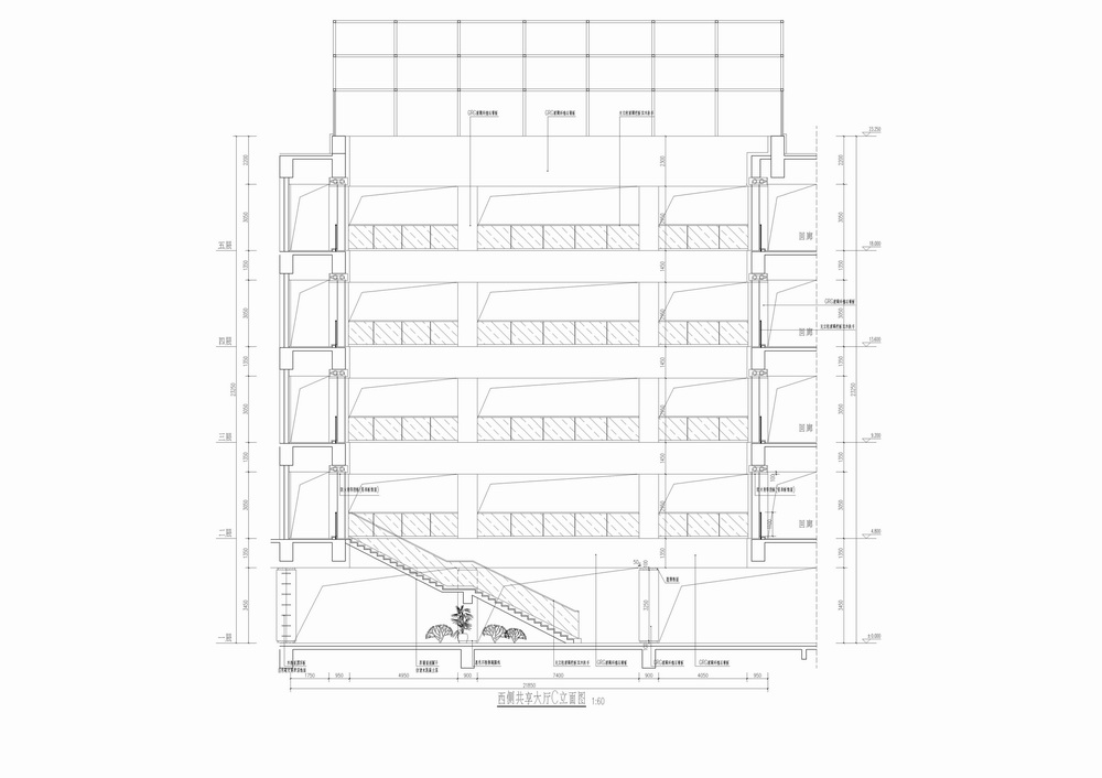
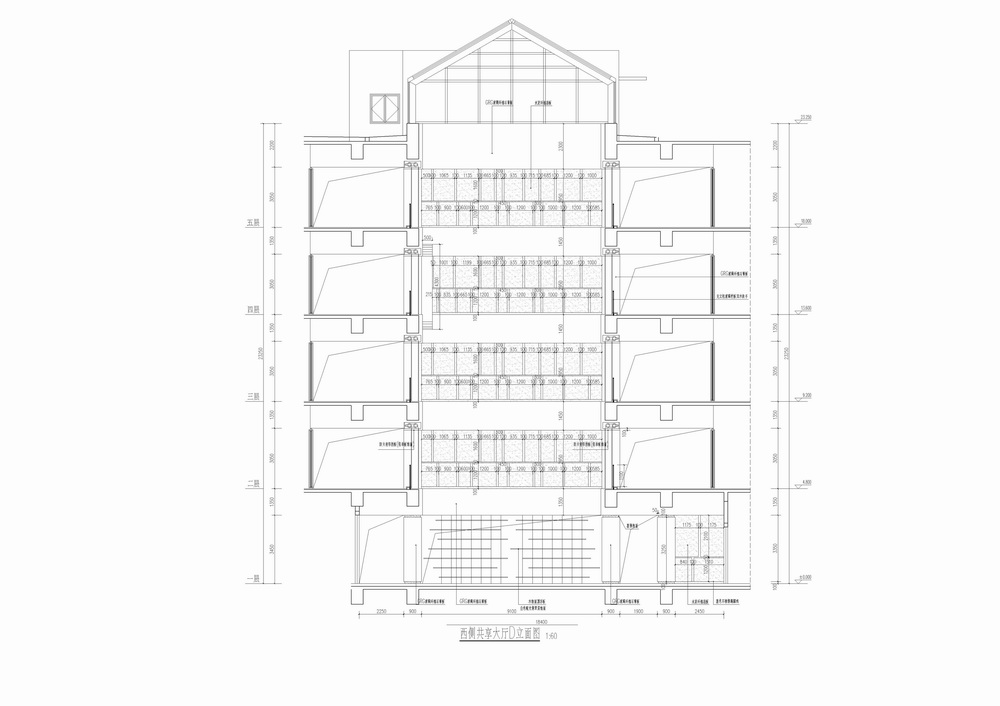
△立面图
项目信息
项目名称: 长春兴隆综保区高新技术企业孵化园区室内设计
建筑事务所/公司/机构/单位: 哈尔滨工业大学建筑设计研究院
事务所/公司/机构/单位网站: http://www.hitadri.cn/
联络邮箱: 83523235@qq.com
公司所在地: 黑龙江省哈尔滨市南岗区黄河路73号
项目完成年份: 2021年2月
建筑面积: 70432.47㎡
项目地址: 吉林省长春兴隆综合保税区内
主创建筑师: 王野
主创建筑师邮箱: wangye1218@126.com/83523235qq.com
摄影师: 韦树祥
设计团队: 王思琦、王鹏、李欣、尹鹏志、刘霁
委托方: 长春兴隆综合保税区管委会

BIM建筑网































