丹麦技术大学生物工程楼是一栋教学及研究建筑,是丹麦技术大学的综合扩建计划中的一部分。该建筑由实验室、研究所及教学区域组成,与已有的224及223号楼相连,被视作这两栋楼之间的连接。224号楼已经经过了现代化改造并进行了新建筑的能源改造。本项目中Mikkelsen建筑事务所扮演的角色包括建筑服务,用户流程,大纲与项目建议书的准备以及主要项目工作,此外,还包含执行相关的投标管理工作以及项目跟进和技术检查。
225号楼的设计反映了业主的意向:使研究员们的工作环境与外界环境保持通透。该建筑的架构确保为科研、创新及知识共享创造了最佳条件,同时使得建筑内部的动态能让合作者们在建筑内部及外部均能以一个全局的视角看到。
该建筑的空间及功能的连贯性构成了一个自然的流线,贯穿于实验室、教室、会议室、静习区,活动区及社交区之间,供研究员、学生等人员使用。不同类型的房间具有特殊技术需求,如洁净度及安保,通过将这些房间根据以上需求进行分隔及归类,建筑的开放度及自由度更进一步,为今后的改变提供可能性。
建筑师及工程师之间的紧密合作保证了其复杂的技术需求及操作方面的考量都被满足,同时,通过建立为非正式会面打造的活动空间,社交环境也得到了提升。224号楼已经完成了改建及翻新,拥有一个新的GMO实验室设备供研究及教学使用。
实验室是具有高洁净度(ISO6)的洁净房间,为GMO类型并且满足密封/生物安全需求(BSL2)。在改造之前还进行了环境整治和拆除工作。224号楼的能源改造已成为未来丹麦技术大学的既有建筑改造的标杆。该项目过程由大重量的设备及科研、实验设施的安装构成。
项目图纸
△轴测图
△日照分析图
△通风分析图
△功能分区
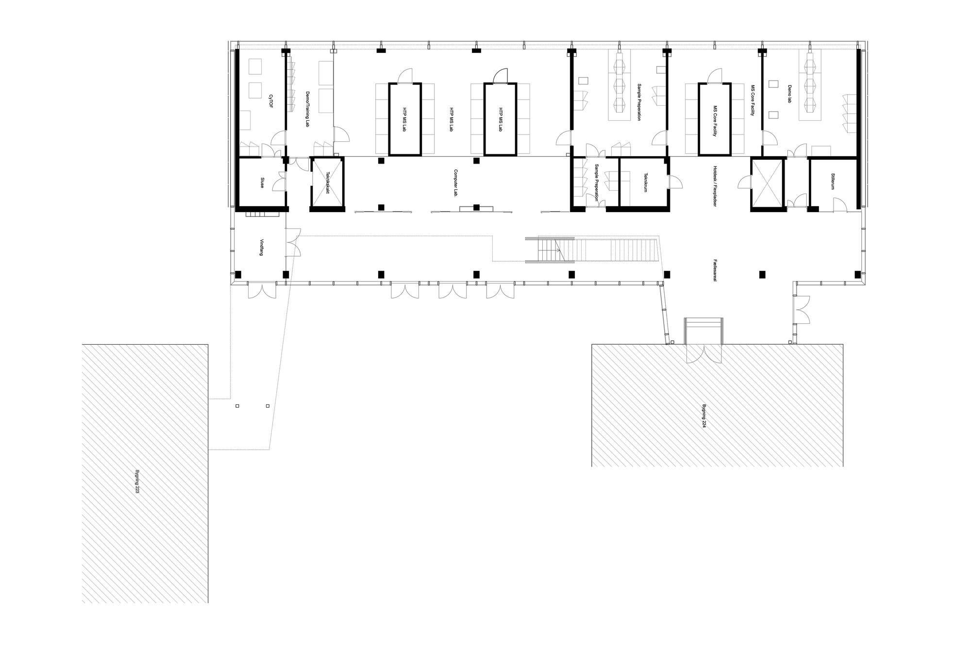
△一层平面图
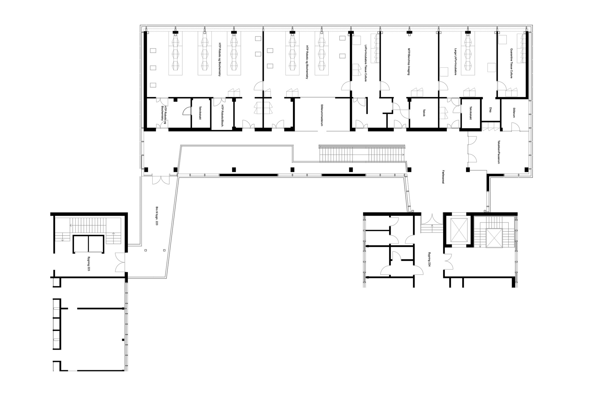
△二层平面图
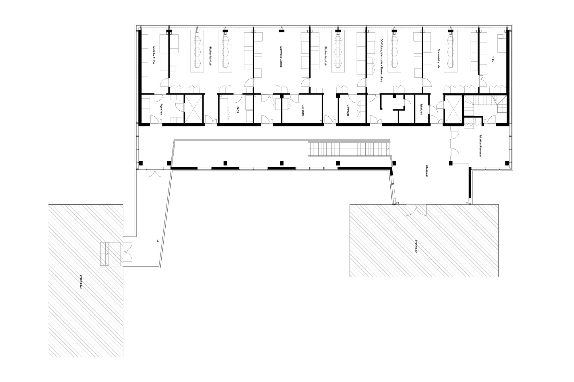
△三层平面图
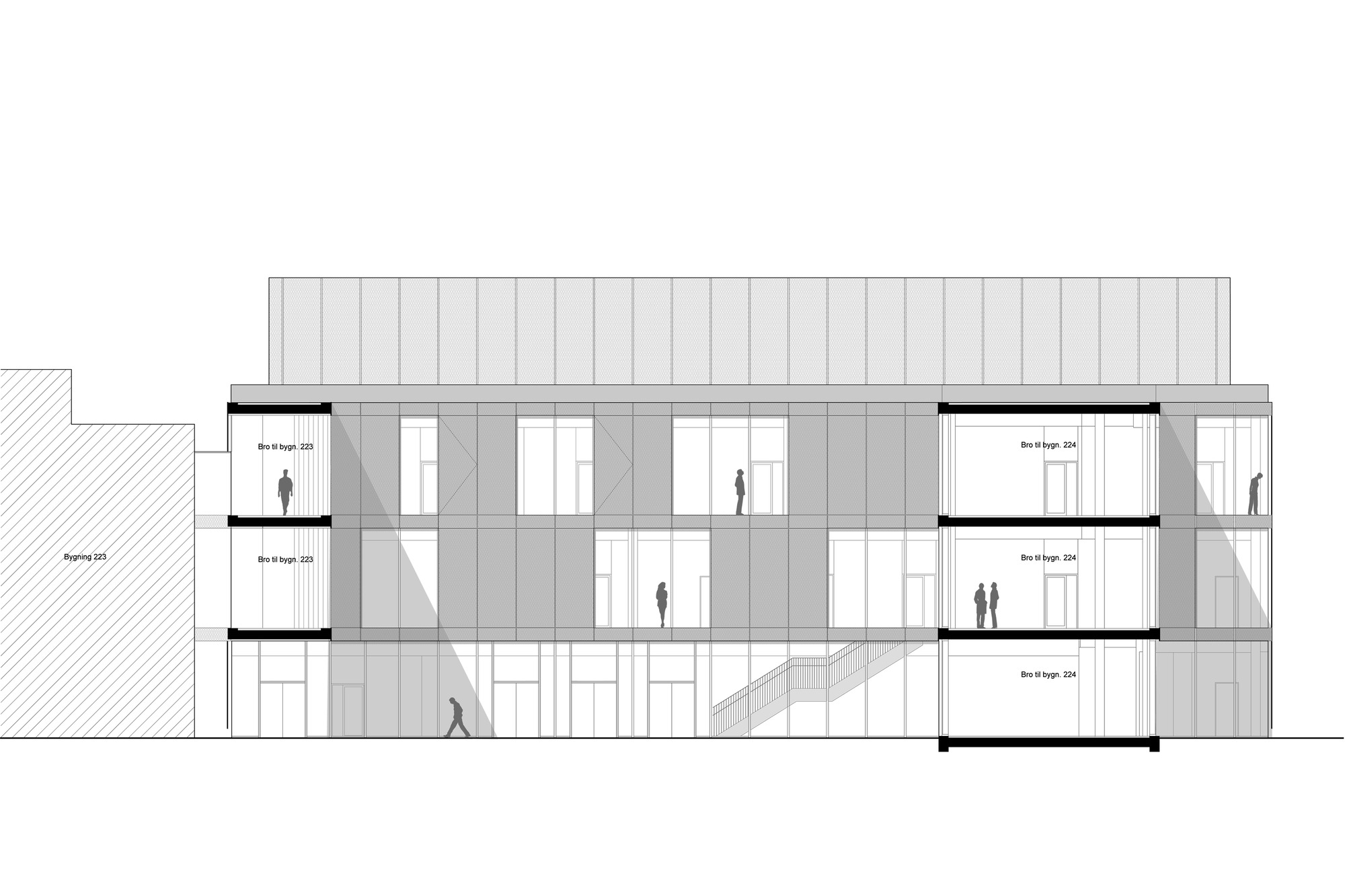
△立面图
△立面图
△大样图
项目信息
建筑设计:Mikkelsen Architects
面积:6432 m²
项目年份:2019
摄影师:Hampus Berndtson
合作建筑事务所:Link Architects
地点:丹麦,Lyngby

BIM建筑网






















