在卢米特高中,你可以欣赏到精彩的戏剧表演,体验到归属感和团结精神,还可以在休息时间聆听自发的音乐表演。迁入新楼的库奥皮奥艺术高中,对表演艺术的教学做出了全国性的贡献。这所拥有 600 名学生的高中专门研究创造性的科目,如音乐、舞蹈和表现性艺术。2022 年秋季落成,它将是 Kuopionlahti 海滨开发的第一个完成部分。它也将是 100 年来库奥皮奥市中心的第一座新学校建筑。
Lumit 的设计是 2017 年公共建筑竞赛的一部分,该竞赛旨在为 Kuopionlahti 地区的发展寻找一个愿景。完成后,Kuopionlahti 沿海地区将成为一个主要的城市文化中心,那里的建筑环境将与周围的自然环境保持平衡。其目的是创造一个学习环境,使用户有能力进行表演艺术教学和专业学习。挑战不仅在于高度具体的空间方案和教学活动,还在于该建筑作为共享文化建筑的作用,它将举办各种公共活动。
Lumit 拥有通往主要门厅和大堂区域的三个主要入口。 大多数公共功能和大厅都位于街道层,毗邻大堂,方便前往,尤其是在举办活动时。 音乐和舞蹈教室靠近大厅,因此也可以在建筑物的外墙上看到(和听到)他们的活动。
室内空间的中心是一个多向表演舞台,可以通过滑动墙同时向三个方向开放:体育馆、餐厅和中央礼堂。 空间组围绕看台楼梯及其大厅分层布置。 该解决方案允许区域层次结构,开放式学习环境强调与大堂相邻的小组工作,以及楼层外缘更集中的学习空间。
学校的黑匣子多功能剧院大厅、特殊的音乐学习空间和舞蹈厅为文化和艺术学习提供了完全特殊的条件。大量的戏剧和表演设备以及精心设计的声学效果一直是设计的一个特别重点。黑匣子大厅是芬兰唯一一个供学校使用的表演空间。
新建筑考虑了周围环境的特殊性,如传统的库奥皮奥网格城市规划和海滩景观。天幕下的楼梯连接了室内和室外空间,另外还作为一个室外礼堂、表演空间和室外教室。天幕还能保护大厅的玻璃表面免受过热和天气条件的影响。Lumit 的浅灰色砖块立面对繁忙的街道形成了一个低调的外壳,但在温暖的木质覆层中向街道和公园开放。由于大型大厅的外墙没有窗户,砖的外墙通过不同的铺设方式形成了细微的差别,从而创造出趣味。
卢米特是一所社区性的、功能性的和安全的高中,空间设计强调视觉连接和开放性,但也强调了退缩和放松的可能性。从周围的街道和广场可以感受到新文化建筑的脉搏,因为从外面可以看到和听到全天候的活动。
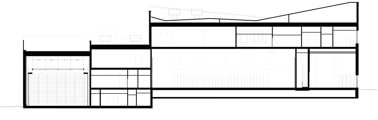
项目图纸
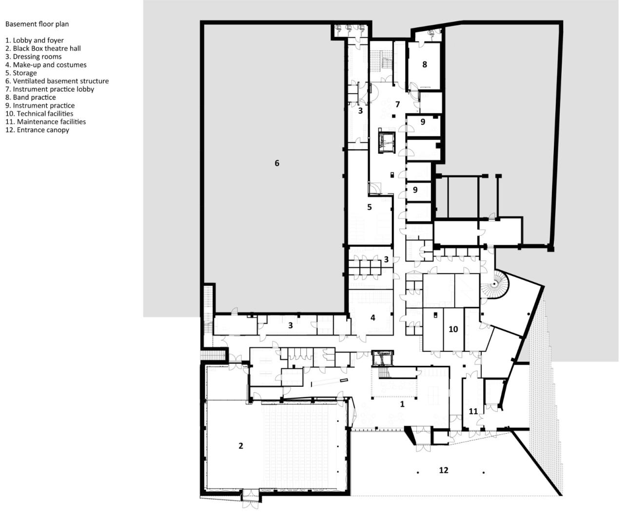
△地下一层平面图
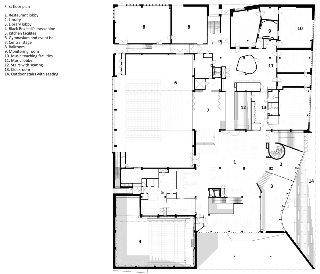
△一层平面图
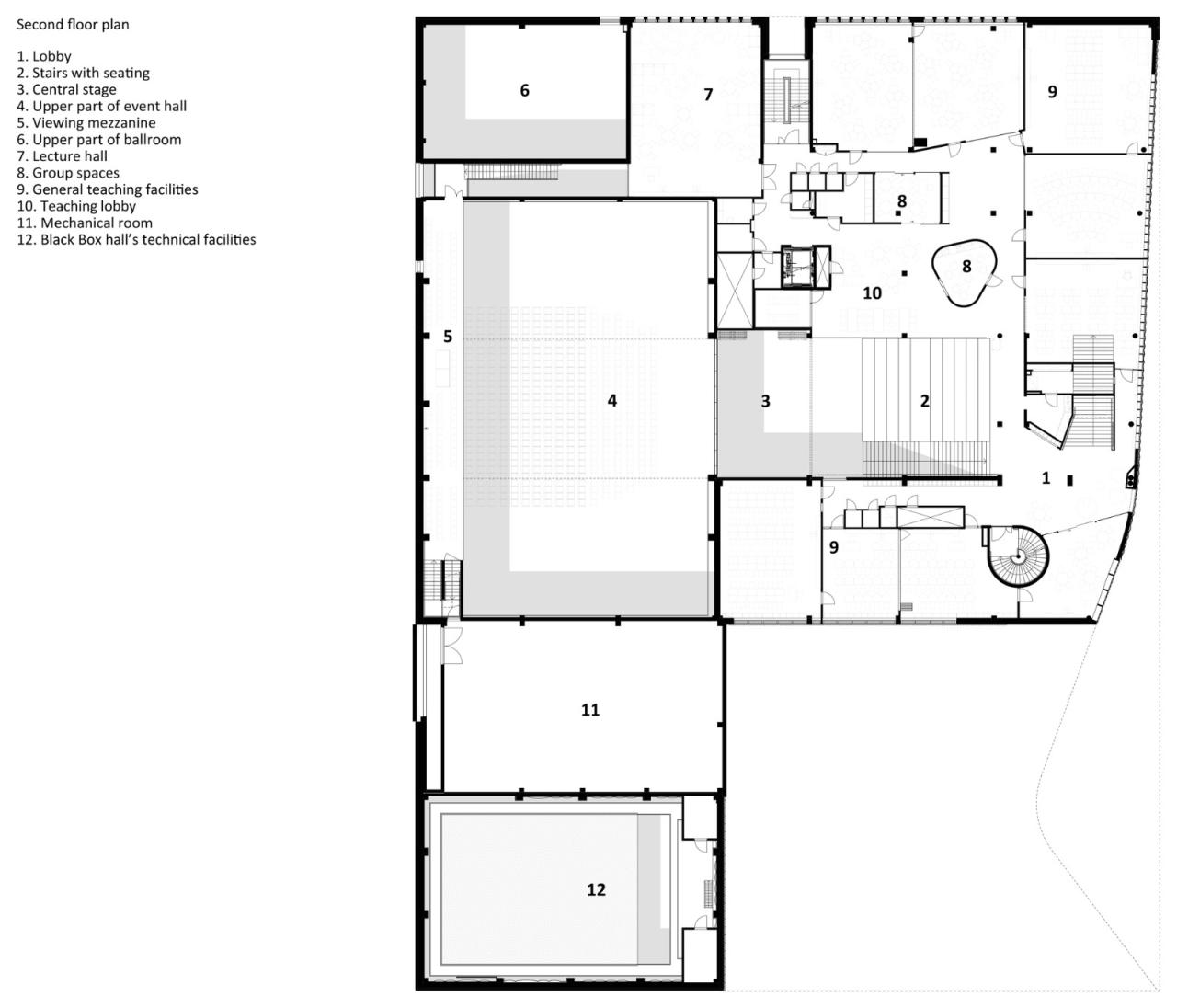
△二层平面图
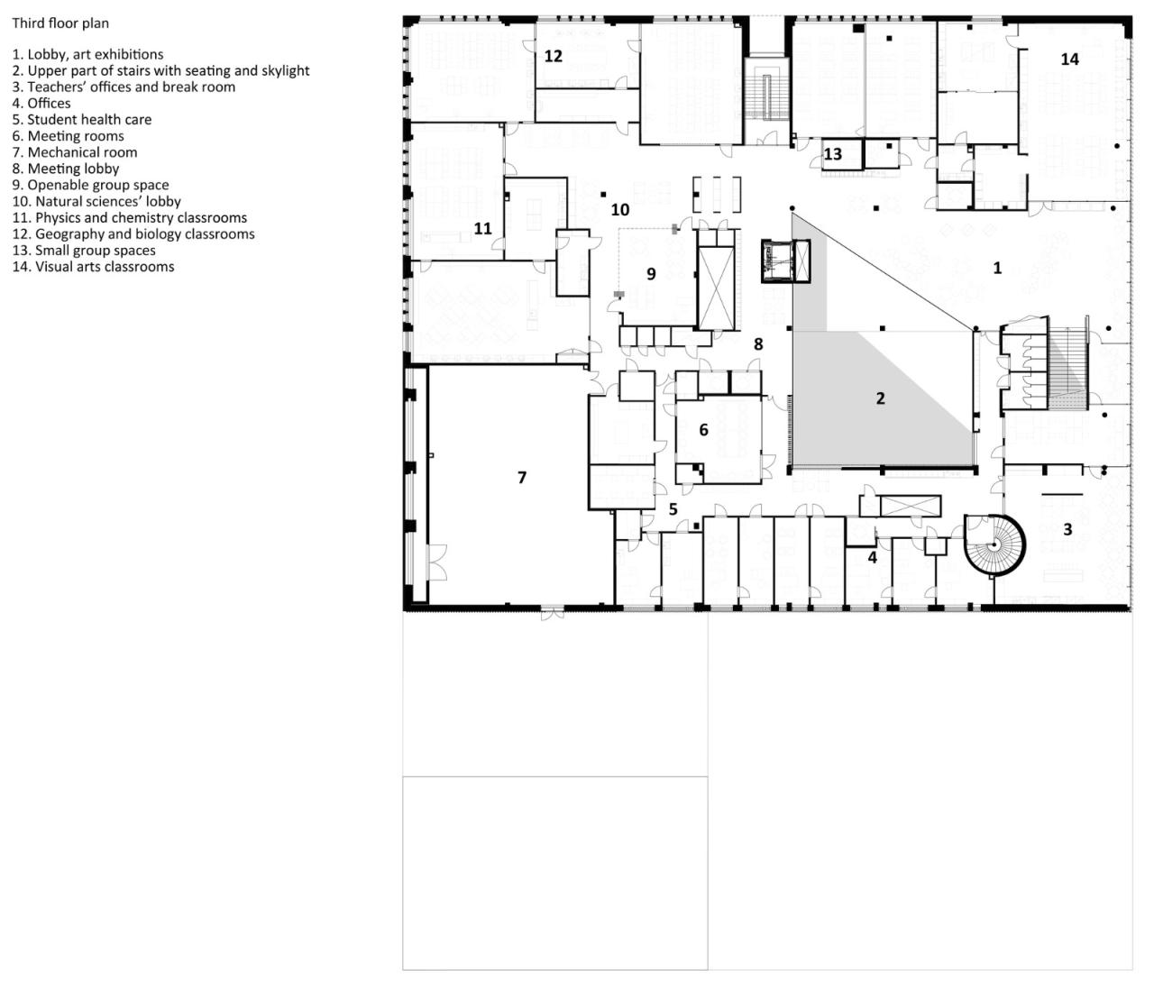
△三层平面图
△立面图
△立面图
△立面图
△立面图
△剖面图
△剖面图
项目信息
建筑师:Lukkairoinen Architects
面积 :9550m²
项目年份 :2022
摄影师 :Aukusti Heinonen
厂家 : Aura ST-Team,Fenestra,GRAPHISOFT,HSL Group,JELD-WEN Finland,Jukola industries,Knauf,Kone Oyj,Koolmat Desso,Lumir Oy,Mapei Ultratop,Metos,Nordtreat Finland,Purso,Puusepänliike Peltoniemi Oy,Raita Sport Oy,Saint-Gobain Finland, Ecophon,Solibri,Tambest Glass solutions,Tiileri, +1
结构工程师 :Esa Tuohimaa, Eemeli Tikkanen
水电工程师 :Granlund Oy / Petri Korhonen (heating, plumbing and air conditioning design), Seppo Mäkelä (electricity and lighting design) Akukon Oy / Tapio Ilomäki (audiovisual design), Timo Risku (mechanical theatre systems design)
景观建筑师 :VSU Maisema-arkkitehdit Oy / Outi Palosaari
防火工程师 :Palotekninen Insinööritoimisto Markku Kauriala Oy / Päivi Myllylä & Risto Ranua
主承包商 :NCC Finland OY
地点 :芬兰,Kuopio

BIM建筑网














































