多特蒙德联合酿酒厂区(Dortmunder Union-Brauerei)德国西部莱茵河下游的鲁尔工业区,曾是“德国工业的心脏”,现被重新规划定位为新艺术街区,计划用十年的时间完成整个区域的更新改造。多特蒙德U 艺术创意中心是第一个启动的项目,紧随其后的就是多特蒙德U 职业教育园区。
多特蒙德U艺术创意中心是鲁尔区工业建筑改造的成功典范,代表历史上多特蒙德啤酒产业历史的废弃酿酒厂经过改造后重焕生机,再度成为了多特蒙德市的地标,成为了艺术的聚集地,以及市民的文化精神堡垒。
而多特蒙德U职业教育学园则以新建的园区与历史建筑融为一体,凸显了 U 艺术创意中心作为地标及制高点的地位。设计延续了创意中心的语言,并以开放共生的理念,打造出可以自由互动与交流的文化创意场所,使整个区域焕发新的生命。
*多特蒙德U曾作为2010年上海世博会德国馆鲁尔区展区主题
ⒸGerber Architekten
01 保护性修复
钢铁、啤酒和足球,是多特蒙德市的象征,而多特蒙德U艺术创意中心的前身正是1927年建成的多特蒙德联合酿酒厂。二战中,多特蒙德曾遭遇惨重的轰炸,但是啤酒厂却奇迹般地保存了下来,见证了城市的历史和未来。
随着时间推移,鲁尔区从重工业向科技产业转型,酿酒厂也随着矿区的萧条而废弃。为了对工业历史进行保护和利用,1998年,政府开始推动实施 “工业遗产之路” 保护修缮计划,涵盖54处重要工业景点。这栋承载了厚重历史、文化、情感的酿酒厂,也重获新生。2008年,盖博建筑设计事务所在743家竞赛团队中脱颖而出,一举中标。
政府的规划限制十分严格,酿酒厂必须坚持保护性修复的原则,并在此基础上进行提升改造。设计保留了全部建筑结构与内部空间,并巧妙地利用原有结构在建筑内部植入新功能。改建后的艺术中心功能丰富,15000平方米的混合使用空间分布于八层,有博物馆、文化教育中心、电影院、艺术图书馆、大学附属机构及屋顶观景台、酒吧、活动空间等。经过修缮扩建,建筑被描述为“多特蒙德的蓬皮杜中心”——将多特蒙德U艺术创意中心比作“文化的发电厂”。
ⒸGerber Architekten
ⒸGerber Architekten
02 工业遗产的瑰宝
前往多特蒙德U艺术创意中心,首先映入眼帘的是建筑首层的门厅空间。这个当年用来输送啤酒的垂直井,被巧妙地改造成一个通高的楼梯间,访客在进入建筑的第一时间就能体验到啤酒酿造厂当年的壮丽和宏大。设计巧妙地对塔楼边缘遗留的结构进行逐层切割,连接了扶梯和走廊,创造出一个逐渐向上的狭长空间。通过重新塑造和定义这个空间,现代人可以充分体会、感受、理解、记住曾在这个地方繁荣兴盛的工业建筑文化。
ⒸGerber Architekten
艺术中心的门厅区域设有一个咖啡厅和一个演讲厅,可用于各种会议、演讲等活动。整个建筑中“红色”元素反复出现。演讲厅采用了红色主调,烘托温暖的氛围。红色的金属锥形盒子嵌入立面,这些新的元素穿插在古老的建筑中,形成鲜明的对比,呼应艺术突破界限的精神,丰富了立面造型,使这栋古老的建筑散发出现代气息。
ⒸGerber Architekten
ⒸGerber Architekten
U艺术创意中心的一层到三层包含了大学艺术和文化中心、协会以及一个创意产业研究所;三层以上则是奥斯特沃博物馆。设计保留了U艺术创意中心原有的屋顶,并更换了结构,对空间进行了重新设计,巧妙地将现有的结构支撑隐藏在博物馆内,参访者在观展时可以瞥见这些时间的印记。原有的天窗提供了丰富的采光及良好的视野,打造了一个犹如 “大教堂” 般的空间,形成了U艺术创意中心最具代表性的立方体屋顶。
“大教堂”穹顶之上镶嵌的11米高的金色U形标志,自1968年被竖立在酿酒厂建筑楼顶以来,对多特蒙德及整个鲁尔片区有着举足轻重的意义。盖博建筑希望人们无论是坐火车经过多特蒙德,还是步行进入城市中心,都能从城市的各个角度看到这个金色标志。
ⒸGerber Architekten
从城市的角度看,U形标志既是一个聚焦点也是制高点;从建筑顶楼俯瞰,整个城市和街区尽收眼底。设计在屋顶窗户上添加了LED投影,这项专利技术可以在外部投射动画,同时内部仍然可观看外部景色。LED屏会根据不同主题形成相应图案,迎合城市气氛,进一步巩固了U艺术创意中心的城市地标地位。
ⒸGerber Architekten
U艺术创意中心的庭院位于主楼正下方,是访客的另一参观亮点。在这里,古老的砌砖立面通过大型圆拱连接到美丽的庭院。这个空间经过精心协调和设计,每个细节都显示出卓越的工艺和设计。
尽管设计受到了十分严格的空间限制,盖博设计为建筑营造出非常和谐的空间关系及体验氛围,使多特蒙德U艺术中心的外观仍保留了原始的工业痕迹。
03 金标下的红砖雕塑群
©Gerber Architekten
多特蒙德 U 职业教育学院园区位于在中央火车站和 U 艺术创意中心之间,现已成为德国最大的职业教育中心之一,占地 20,000平方米。2014年,多特蒙德市政府招标扩建,盖博建筑设计事务所再次中标。
©Gerber Architekten
对于多特蒙德市来说,U 艺术创意中心顶部的金标既是城市代表,更是精神依托,是德国在工业改造、城市更新过程中具有承前启后的重要城市标志。
因此,在规划 U 职业教育园区时,盖博建筑提出:必须确保从经过的火车上可以看到塔顶的 U 形标志。正因如此,多特蒙德 U 职业教育园区的建筑采用了凹凸各异的扁长体量,把高度及视线带来的限制转变成为设计机遇,结合地段打造了层次感丰富的外部空间。
新建的园区与历史建筑融为一体,凸显了 U 艺术创意中心作为地标及制高点的地位。设计也采用了与 U 艺术创意中心相同的建筑材料,保持一致性。
©Gerber Architekten
多特蒙德 U 职业教育学院园区包含两栋主体建筑,分别为 "L" 形的罗伯特•博世职业学院(Robert Bosch)和 "I" 形的罗伯特•舒曼职业学院(Robert Schumman)。罗伯特•博世职业学院位于地块西侧Ritterstraße大街和南侧U艺术创意中心的连接区域;罗伯特•舒曼职业学院占据了地块的整个北端,与火车站平行。
学院大楼及办公楼均朝向主广场,是设计的一大亮点。两栋学院即独立又彼此相联:罗伯特•博世学院借由下沉庭院,可从Ritterstraße大街进入园区;罗伯特•舒曼学院位于裙房顶部的中央庭院,人流可通过Brinkhoffstraße大街拾级而上进入园区。两个学院都有独立的庭院空间及临街入口,通过横跨学院的共享报告厅相连接。
ⒸGerber Architekten
园区的裙房部分融合景观设计,采用了半地下建筑形式。报告厅是连接两个学院的纽带,不仅享有丰富的自然采光,其倾斜的坡屋顶也自然地形成一个室外阶梯舞台,为学生提供自由互动、交流和灵感的场所。
地块与周边环境的高差也被巧妙融入城市设计中。交替的建筑高度解决了体量及视线的限制;多变的室外空间、通透的视觉,使人无论处于园区哪个位置,抬头都能看到金色的U形标志。多变的地形也为建筑室内外空间带来丰富的体验。
园区配套的办公楼位于地块的东南侧的Brinkhoffstraße大街,既界定了新园区的边界,也为创意产业提供配套服务。办公楼首层设有接待区,内部空间灵活,每层以开放形式布局,办公单元均可灵活扩展。园区裙房空间中还设有停车场,有500多个车位,自然通风,每层均有通向主入口的通道。
©Gerber Architekten
多特蒙德U职业教育学院园区与众不同、开放共生的空间理念,渗透进设计的每一个细节中。当人们进入城市,或者搭乘火车经过多特蒙德时,园区的红砖墙及U艺术创意中心的金色标识一览无余,完美回应了设计团队的初心,以文化创意为核心,使曾经荒废的区域焕发新的生命。
©Gerber Architekten
项目图纸
△模型图
△模型图
△模型图
△模型图
△模型图
△模型图
△模型图
△基地示意图
△总平面图
△教育学园负一层平面图
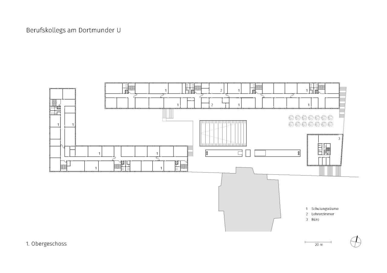
△教育学园一层平面图
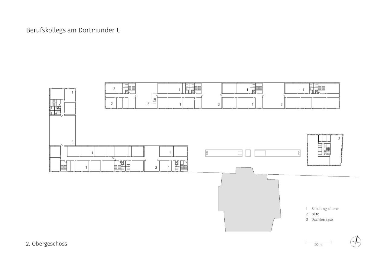
△教育学园二层平面图
△教育学园三层平面图
△教育学园四层平面图
△艺术中心平面图
△艺术中心剖面图
△艺术中心和教育学园剖面图
项目信息
项目名称:多特蒙德U艺术创意中心及职业教育学园
项目类型:文化/教育
项目地点:德国·多特蒙德
业主:多特蒙德市政府,多特蒙德北区建设中心
设计范围:建筑设计、室内设计
方案设计(艺术中心):2006
建设时间(艺术中心):2008–2010
建筑面积(艺术中心):19,969平方米
方案设计(教育学园):2008
建设时间(教育学园):2013-2015
建筑面积(教育学园):55,915 平方米
项目团队
总设计师:Prof. Eckhard Gerber
项目总监:Thomas Lücking
主要项目组成员:Hannes Beinhoff, Olaf Schüler, Van-Hai Nguyen, Artur Schiebelbein, Marius Ryrko, Rolf Knie, Benjamin Sieber, Jens Haake, Rosemarie General
结构总监:Rüdiger Ameling; Claus Tedt

BIM建筑网
















































