2019年我们有幸竞赛拿到该校园建筑群落的设计权。极度不规整的场地边界(一个由折线边界构成的近乎梯形的非规则多边形用地)让我们不得不有机会尝试打破传统规整的教育建筑布局模式。
△西南方向鸟瞰 | 扭动的文教花园© UA尤安设计
△文教群落的文体界面© UA尤安设计
△ 教学单体的漫射光介质表皮© UA 尤安设计
类型 | 反行列式的自由空间
场地的不规整的特殊性让我们不得不考虑打破教育建筑的经典布局类型,因为规整的排布完全无法契合用地红线的特殊性,既不能满足教学班级数量的排布,又造成了大量浪费冗余的室外边角料空间。如果能创造一种小巧的组团花园式小堡垒单元,它们能根据场地边界自由地旋转和复制,既解决了建筑在合理日照条件和朝向下对场地边界的利用和贴合,又同时创造了积极的室外空间。
△校园西向俯视 | 内外庭院的组合© UA尤安设计
△校园空间系统概念图 | 静、混、动、“不确定性”的空间咬接© UA尤安设计
△校园西界面 | 自由交流的相遇式路径1 © UA 尤安设计
△校园西界面 | 自由交流的相遇式路径2 © UA尤安设计
学生不是被收纳在行列式“书架”的“书本”,校园建筑也可以不是呆板齐整的“书架”,除却日照和规范间距的格式化影响,校园似乎应该充满各种未知的可能和适度反教条的“规整”。建筑载体不应仅仅承载和映射“上课”“下课”的简单二元活动模式,校园规划也不应仅用“动”“静”两个分区来简单划分,还有更多关乎“交流”“分享”“相遇”“共享”“发现”的空间和场所积极地出现。
方法 | 空间折叠与组团重构
教学楼座主体的之间的闭环式纽联在缔造回环式交通的同时创造了更多交流空间与课间相遇的可能,合班的课外教室和辅助空间也恰如其分挂在了两个交通纽带上。“折叠”操作一方面增加了“一”字形教学楼栋的维度和空间内涵,另一方面让小组团自我拥抱成一座座独立且灵动的小“城堡花园”,能够随机地根据场地的需要扭转、拼合和复制。
△校园模式演绎 | 从行列到花园 © UA尤安设计
△自由交流花园 | 入口© UA尤安设计
△自由交流花园 | 入口© UA尤安设计
模式 | 从“行列”到“庭院城堡”的灵动群落
这种模式融合了规范对教学单体的所有格式化和安全性控制,通过黏连封闭教学组团的东西端口,形成闭合回环的小型“花园城堡”。通过与教育单位的反复沟通,一个小型组团能够恰好容纳一个年级的班级数。
△教学单体自遮阳与光漫射表皮© UA尤安设计
△空中连廊小径 | 望与被望的迷你“城堡” © UA尤安设计
△不同区块的交流庭院© UA尤安设计
如此展开,不同年龄和年级的教学组团小“城堡”拥有了相对独立的内在庭院,又共享“八”字形的组团间户外空间,在这种模式里,间距不是间距,是空间和场所,是传统意义的“静区”与“动区”的过渡区域。不同年级的教学安排和活动能够在自由地“堡垒”里独立高效的展开。
为了让每个不同年龄的文教“城堡”有未来专属独到的“内心”,我们为每个组团的庭院提供了不同的进一步专属优化的可能。庭院色彩、交流共享场所的布置和栽植成为这道公式的x变量。
△“静区”与“动区”的过渡区域© UA尤安设计
连廊在组团的边缘形成一道“交通+交流”的平台与界面,它们是跨越年级和年龄的桥梁,也是与“八”字庭院视线互动的平台。一眼望去,穿过庭院的草地,看到框景里的操场。
△“交通+交流”的平台与界面© UA尤安设计
情绪 | 奔跑和发现的自由
教育建筑的研究应当很好地融入情绪研究,空间、色彩、安全条件下的确定性中的不确定、未知领域、视野层次等等,这些都将成为常规刻板教学载体模式的突破口。
△开敞空间与平台、庭院的渗透© UA尤安设计
△不同功能场所之间的视线叠积与过渡© UA尤安设计
在校园里的课外生活或课间生活,很大程度影响了孩子的性格和价值观养成,造就每个不同生命个体的恰恰是个体中与众不同的那部分,就如本案中每座教学组团的构成一般。校园不能只有教室和操场,要有“领域“和场所,学生应当有奔跑、相遇和发现的快乐。
文教的花园堡垒聚落试着与城市的地缘文脉对话。在有泉的城市里,一座座“花园”组团呈现如泉水冲磨后的圆润;在有山的城市里,让人造的山(体育馆)与自然的山对望。
项目图纸
△初期概念草图© UA尤安设计
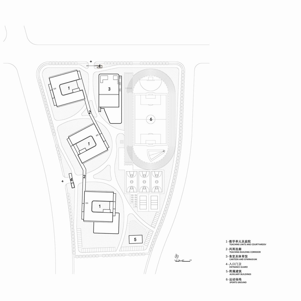
△总平面图© UA尤安设计
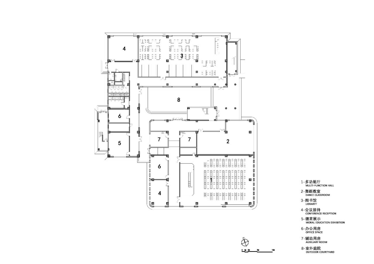
△首层平面图© UA尤安设计
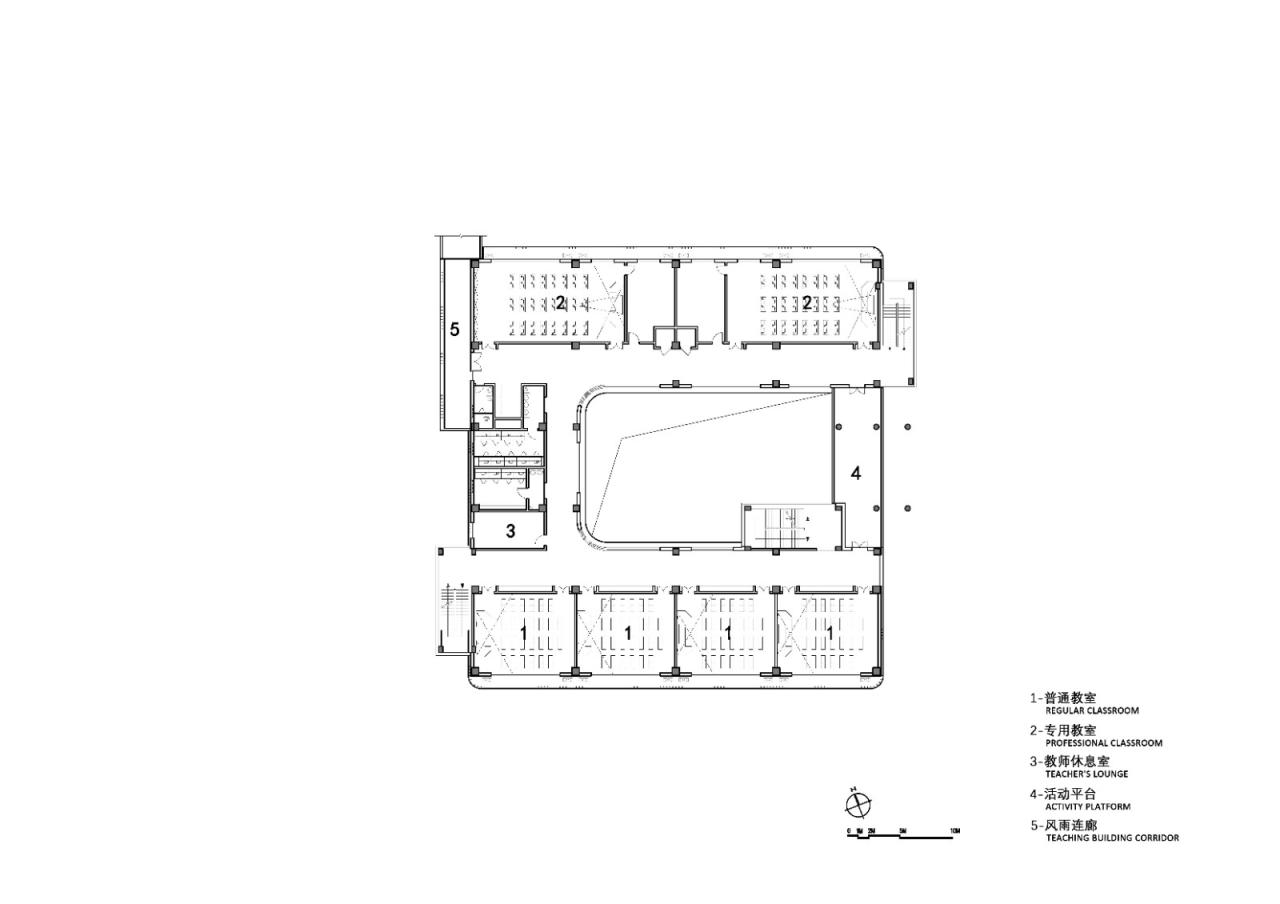
△教学层平面图© UA尤安设计
△教学单元剖面图© UA尤安设计
项目信息
项目名称:自由理想的“花园城堡”——济南北康初中教育建筑群落
项目类型:文教建筑
设计团队:UA 尤安设计
项目甲方:济南中博置业有限公司
主持建筑师:胡 博 | architect Bob Hu
主创团队:索晓蝶、骆盛韬、张倩蓉、贾宝鼎
施工图设计:济南市市政工程设计研究院(集团)有限责任公司
施工单位:济南一建集团有限公司
项目地址:山东省济南市
建筑面积:26399.26㎡
设计时间:2019.4-2020.4
完成年份:2023.8
摄影:夏强

BIM建筑网
























