Sowol-gil 公共连接线新提案本项目的目标是连接被悬崖峭壁隔断的花洞村 Sowol-gil 和 Duteopbawi 街。除了克服现有 Sowol-gil 的高低差的简单装置外,我们还希望这座建筑成为一条向所有人开放的新路,成为人们聚集和创造故事的空间。
大多数城市空间体验都发生在道路上。建筑也要考虑现有道路环境中道路与空间之间的关系。我们想让这个项目成为村子里的一条新路,而不是现有道路和空间之间的零散关系。我想观察一下通过这个项目会产生什么样的体验和变化。
为村庄提供的道路我希望利用 Duteopbawi-gil 和 Sowol-gil 之间约 15 米的台阶差,使其成为一个具有丰富空间体验的开放式建筑。作为建筑中心主角的道路自然而然地吸引着人们。道路的流线从 Duteopbawi-gil 开始,穿过建筑空间和道路形成的三维空间,面向首尔的风景向上延伸。最后到达 Sowol-gil ,到达屋顶露台,在这里可以将南山和首尔的景色尽收眼底。
创建一个村庄在道路的每一个序列阶段,都设置了能够捕捉人们活动的体验元素,以创建一个垂直的小村庄。根据不同高度的环境设计了与道路相连的三维空间,并在每个空间中设置了向居民开放的项目。
变化与坚持在 100 多年的时间里,我希望这个空间成为城市中一个有意义的地方,为此,我希望使用经久耐用、有说服力的材料,以及能够很好地应对各种变化的形状和纹理。楼梯、石板和挡土墙的纹理是在考虑形状和韵律的基础上,利用裸露的混凝土模具确定的。
首先,在空间中起核心作用的楼梯使用了 EPS 模具。通过密集布置垂直的弧形浮雕,注意到了阴影所营造的垂直感和节奏感。每层空间都设计了突出的屋檐,以强调水平板。此外,通过使用 PET 胶合板轻巧地表达地平线的韵律,期望地平线的韵律与垂直楼梯在三维空间中相遇。此外,通过使用柱梁尽量减少墙壁,外表皮由玻璃制成。通过这种方式,建筑和周围环境所创造的景色被积极地观察到,空间的性质也可以自由地变化。建筑周围的挡土墙通过混凝土凿毛,展现了现有地形的粗糙性质。
项目图纸
△区位分析图
△总平面图
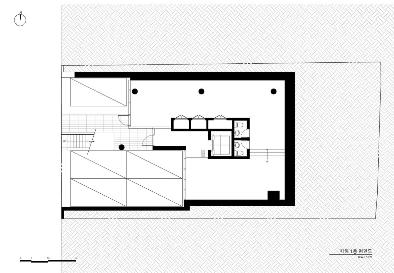
△地下一层平面图
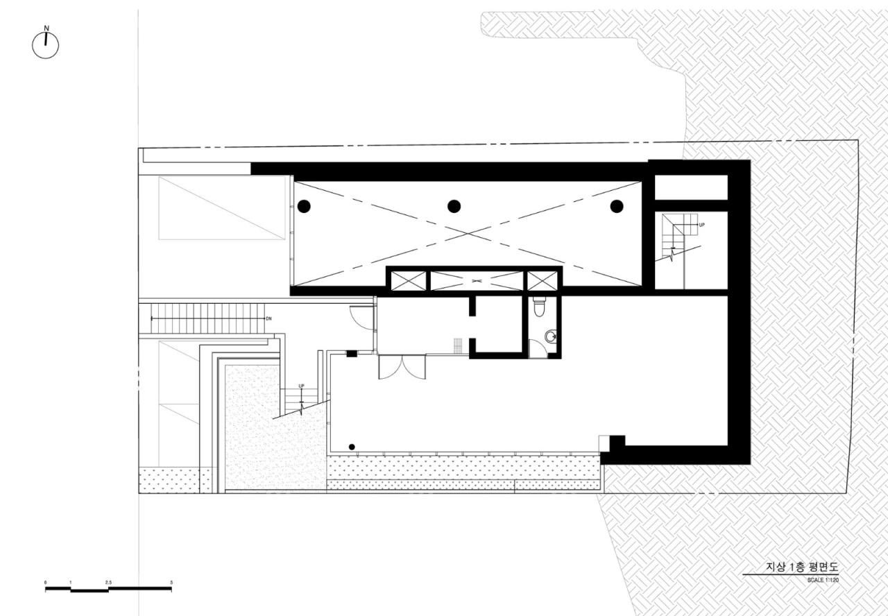
△地上一层平面图
二层平面图
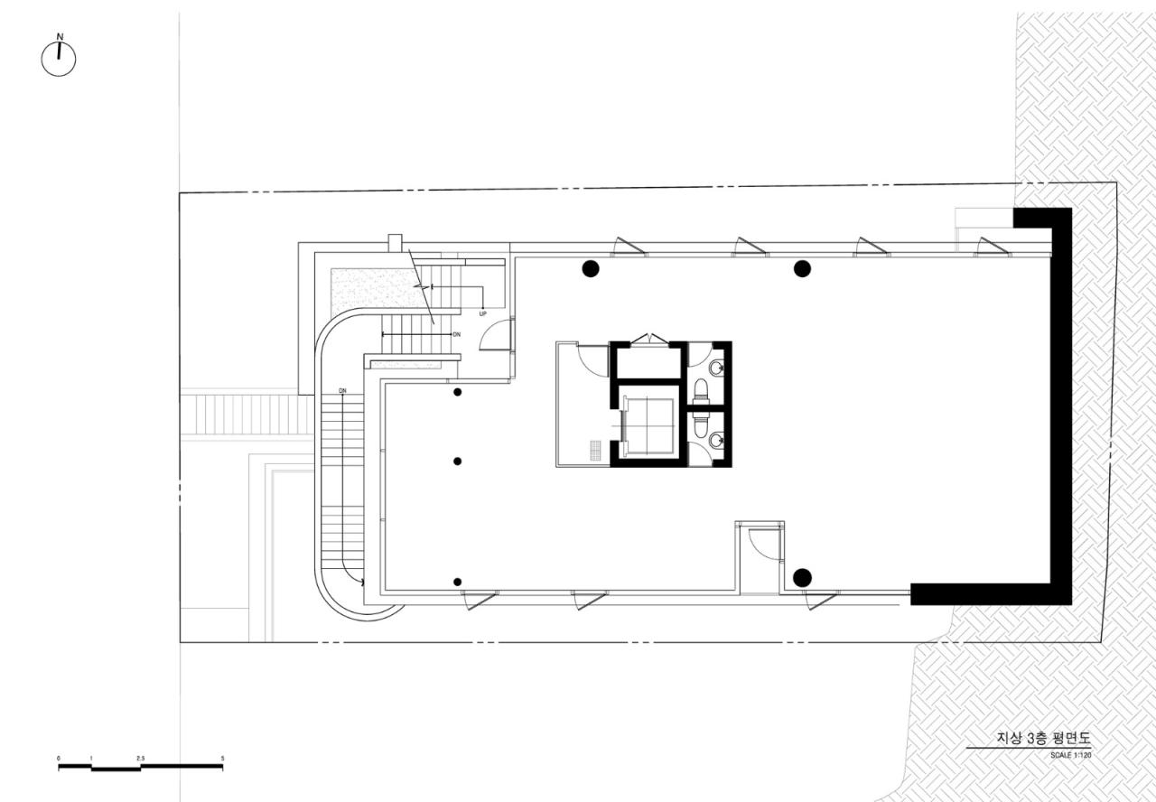
△三层平面图
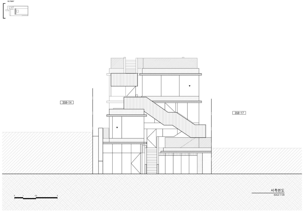
△立面图
△立面图
△立面图
△剖面图
△剖面图
△分析图
项目信息
建筑师:Boundless
面积:646m²
项目年份:2022
摄影师:Shin Kyung Sub
主创建筑师:Moon Jooho
功能:商业
地点:韩国,Yongsan-gu

BIM建筑网

































