存在主义的朝圣空间冥想小教堂与其说是一个城市社区中的传统礼拜场所,不如说是一个供独居者在大自然的神圣面前品味其存在的圣地,本质上是一个远离城市的隐居地。它源于为这些朝圣者提供一个小型祈祷空间的要求。因此,建筑师并没有模仿极简主义建筑的形式,将一切都剥离出来,而是选择了功能上的简洁,忠实地扮演起容纳游客存在的容器的角色。
一个升起的盒子简洁的小教堂坐落在广袤的大自然中,被建造成一个升起的盒子,象征着与世俗世界的分离。它通过最小的序列和垂直扩张的效果营造出一个令人肃然起敬的空间。它没有采用漫步式的建筑方法,延长了游客享受丰富自然和空间的路径,而是让他们快速、简洁地到达开阔的天空,直接作为孤独的个体站在神灵面前。
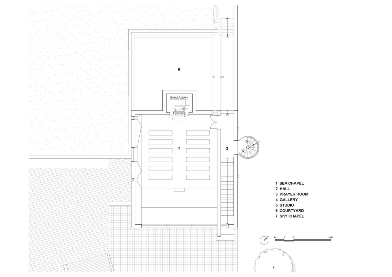
四个表面小教堂内部分为四个表面,每个表面都有自己的目的和主题:海、声音、光线和包裹它们的背景。正面是一面混凝土墙,可以捕捉无意识的景色,容纳朦胧的西海和自然光。这里没有波浪摇曳的普通大海的壮观景色,而是充满了幽暗的西海,使其更加庄严肃穆。因此,这里成了一个连用于宗教劝说的简陋讲坛都不需要的空间。
背面是一面墙,上面安装着风琴,这是一种偶尔以协同美学的方式表达天人合一的工具。这是一个典型的例子,墙面简约但不寒酸,充满活力但不奢华。欢迎绿色植物的墙壁由单色构成,设计比例均衡。12 扇漏斗形彩色玻璃窗是自然的隐喻。与中世纪教堂试图表达《圣经》内容的彩色玻璃不同,这里的彩色玻璃窗以抽象的绿色为主题,使室内外充满了绿色,让游客能够不断地感知自然。小教堂入口处的墙壁引导人们从内部观察外部世界。从观察者的角度来看,这是一面空墙,与其他三面主题墙遥遥相望。到了傍晚夕阳西下的时候,这面墙就会变成一个屏风,容纳彩色玻璃发出的长长光线。
三个空间小礼拜堂由三个空间组成,它们都具有凝神静气的功能。首先是“海洋小教堂”,在这里人们可以凝视无尽的昏暗景色,类似于詹姆斯·特雷尔的装置艺术;还有“壁橱小教堂”,在这里人们可以平静地专注于光源。此外,“天空教堂”位于屋顶,只有天空被绿色环绕。因此,心灵小教堂的空间体验源于简单的体量,具有多样性和持续性。海上教堂是几个人眺望西海远处微弱地平线和中性天空景色的地方。这是一个支持丰富艺术体验的公共心灵空间。
壁橱小礼拜堂狭长,自然光从正面的墙壁射入,沿着墙壁照射到地面,更显虔诚。这里是一个轻盈的心灵空间,可以让人独自深思,它作为一个独立的空间位于海教堂的前上方。天空教堂是一个长方形的屋顶空间,四周是混凝土墙壁,恰到好处地掩盖了建筑外隐约可见的山脊和下方的建筑,给人一种完全的敬畏感。纵向上,它可以让人专注于天空的心境;横向上,它可以唤起无尽的心境。
项目信息
△ 项目区位示意图
△项目区位示意图
△首层平面图
△二层平面图
△三层平面图
△剖面图
△剖面图
△剖面图
△分析图
△窗户细部大样图
项目信息
建筑师:ATELIER KOMA,Lee Eunseok
面积:142m²
项目年份:2023
摄影师:Kim Yongseong,Urban Azit
彩色玻璃艺术家:Chung Kyungmi
管风琴制造大师:Hong Seonghun
设备工程师:Jusung ENC
结构工程师:Edun Structural
电气工程师:Hangil Engineering
总承包商:Eldream Construction
地点:韩国,Kanghwa

BIM建筑网








































