初踏新南幼儿园场地时,心底是曾划过一丝低落与失望的。放眼而去,在这厦门岛外郊区的村子里,除了略显贫瘠的农田耕地,便是凌乱无序的乡村住宅。既没有丰富有趣的场地信息,也没有引人入胜的周遭环境。幼儿园属于基层民生工程,主要是为了满足周边若干自然村内学龄前儿童日渐增长的受教育需求。项目投资也相对拮据:12个班级3900平方米的建筑规模,每平米两千元出头的综合造价(包含场地、土建、设备、简装等),要能直接交付使用。场地不刺激也好,预算不宽裕也罢,一顿抓耳挠腮之后,还是得静下心来想想怎么才能尽量做好这个不大不小的房子。
幼儿园与自然村的整体关系
融入
东寮村的“面相”,与大多数城郊的自然村兄弟相比,并无二异。留守的人们就着自己的一亩三分地过日子,攒了些钱翻建房子基本遵循“经济、适用”的原则:横平竖直、规规矩矩。门窗洞口开得随意,但也符合内部功能。至于“美观”,就根据各家的条件贴上些闽南特色的红砖饰面增添些喜庆罢了。这样成片地仿效建造后,也顺理成章地成了一种“普遍语汇”。幼儿园将近四千平米的建筑体量落到村子里,算是史无前例的公共建筑了。它会以何种相貌示人呢?我们并不想在这建一座自说自话的“天外来物”——哪怕幼儿园这种建筑总是被贴上各种“花枝招展”的识别标签。
自然村中的新南幼儿园
幼儿园外观融入周边环境
于是,与周边的房子相仿,建筑被规整为了简单的方盒子。形体最简化,外墙面积也最小了,幸许能降低一些造价。建筑的开门、开窗基本就着内部功能需要来,孩子们的教室、活动室就开大一些,让室内亮堂一些。外墙采用了闽南当地的红砖,但增加了一点砌法上的有趣变化,这可能是与周边的农村住宅略显不同之处, 所谓“洋气”、“当代”了些。房子建完后,有的老师初来乍到,猛一找寻还未发现幼儿园身在何处,反倒觉得这房子挺“特别的”。
方盒子形体与闽南红砖墙的肌理变化
反差
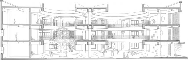
毕竟,房子的“相貌”并不是我们真正关注的重点。如果说之前是在尽量收敛、克制地处理建筑的外在特征,那么建筑内部空间所呈现的状态,才是真正应该多花心思琢磨的事情。我们先在建筑内部掏出了若干庭院,主要的使用功能都围绕着院子布置。有了院子,通风好了,也敞亮了。其中最主要的两个庭院,被设计成一大一小两个圆圈,与方整的建筑反差挺大,有点儿像块大奶酪。小圈儿内种上树引入些四季变化,大圈儿留给孩子们做户外活动。
概念生成
内部空间剖透视
内部空间的材料和色彩以较为纯粹、细腻的白色为主,地面辅以彩色活跃下气氛。虽与外围的红砖对比强烈,但增加了空间的流动性和流畅感。由于造价有限,公共区域暂时没有做吊顶的预算,我们就试着让裸露的结构梁系灵动轻巧,迁就着内部空间兜转环绕,然后拉扯清各类管线的走位,尽量不让其有碍观瞻。应该说,这种内与外、方与圆、红与白之间的俏皮反差是有意为之的。我们期待村里的孩子们进入房子后的惊喜,让他们有机会去感受不同于日常的生活体验。一处真正符合幼儿园空间质感的场所。
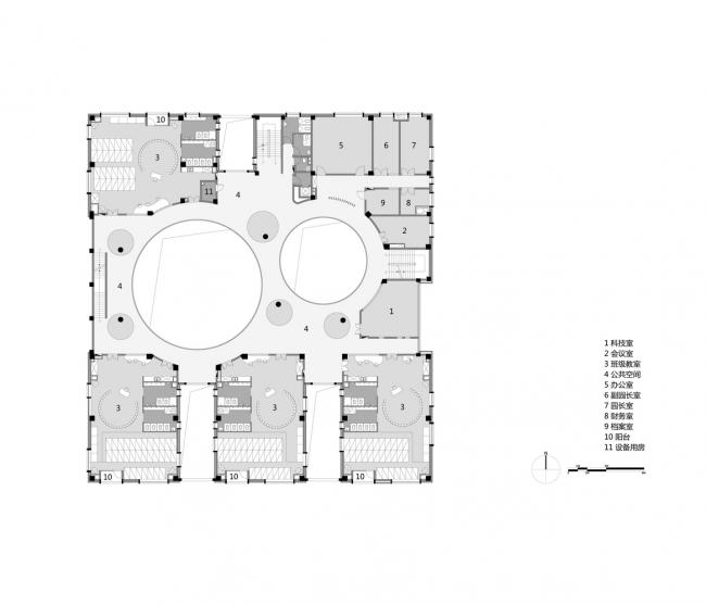
循环
流线和空间之间始终存在着无法割裂的联系,而有趣的流线设计也进一步激发了活动产生的可能。这个年龄的孩子似乎有着永远也撒不完的野,无止境追逐嬉戏的场景对他们充满着莫大的吸引和诱惑。大、小两个圆形中庭的出现为制造这样的场景提供了舞台。幼儿园内部主要的交往场所就环绕在中庭周围,这些区域自然地串出了一个“8”字型空间。在这空间内部,可无限穿梭循环的流线产生了,柔软顺滑、少棱少角,也更有利于孩子们平日活动。由于复杂的现实条件,项目建造的过程并不算顺利。在材料、工艺等方面选择有限,留有了不少遗憾,但相信各方业已尽力。就设计本身而言,也有很多考虑不周、有待反思改进之处。唯感幸运的是对于房子最初的几点设想还是留存了下来。
内部空间与流线
彼时,看到孩子们在明亮流畅的中庭内肆意奔跑,听到一位刚入职的年轻老师说她因为喜欢这个房子而决定来此任教,忐忑的内心平静了些,好歹做了一点有意义的事情。有回和园长聊天,她感慨:“如果这个幼儿园建在市区或许更好“。如果那样,就是另一栋建筑和另一段故事了。其实,不是房子落错了位置,而是区域整体建筑水平的提高还需社会各方的共同努力。长路漫漫,共勉前行。
施工中的幼儿园
图纸
一层平面图
二层平面图
三层平面图
立面图
内部空间剖透视
结构梁系布置
内部空间与流线
项目信息
项目名称:新南幼儿园
项目地址:厦门市翔安区新圩镇东寮村
建筑面积:3900平方米
项目总造价:约900万
项目主持建筑师:牛津
建筑设计团队:刘典典、林晓达、刘世怀
结构设计:白若冰、郑炜鋆
甲级设计院:厦门合立道工程设计集团股份有限公司 土建设计一院
项目经理:魏伟
完成时间:2017年
摄影:张超

BIM建筑网



























