Cocoon位于苏黎世的名为Seefeld的街区,坐落在美丽的山坡上,享有绝佳的湖景和山景。该地区独特的风格源于特殊的公园般的场地环境,Cocoon中心依偎在这一块城市绿洲的旁边。三面环绕着雄伟的古老树木,椭圆形结构看起来像一个独立的雕塑体量,从公园的景致内优雅地旋转而生长。包围建筑物的不锈钢网将视觉隐私与内敛优雅结合在一起,同时营造出强烈而明确的建筑存在感。
大胆独立的建筑风格体现了室内空间组织的创新理念以及与周围环境的互动对话。这样做,既迎合了各种各样的工作场所和一部分居住概念。通过螺旋(BIM)形体量,Cocoon可以被视为一种“交流景观”而生,在无与伦比的环境中创造出独特的空间布局和工作环境。
阶梯式,向上缠绕的空间序列也塑造了建筑物独特的向内性。所有空间都沿着一个缓缓上升的斜坡排列,这个斜坡环绕着一个核心的、光线充足的中庭。空间规划概念省去了划分为水平层的传统做法,形成(BIM工程师)了一个看似无穷无尽的椭圆形地板段。
通过消除通常的沟通障碍,这产生了独特的空间体验和工作环境,为互动和合作提供了一系列有趣的可能性。占地空间设计是占用中立的,并提供完全灵活的分区以及满足未来用户转变需求所需的适应性。
各种元素- 电梯,螺旋坡道,区段和楼梯井- 共同构成了一个结构清晰,功能多样的交通流线系统,既可提供所需的交互作用,又可提供必要的灵活性以适应其他用途。占地空间设计是占用中立的,并提供完全灵活的分区以及满足未来用户转变需求所需的适应性。
在内部,一个光线充足,向上扩大的中庭形成了Cocoon的核心。在此周围,走道和斜坡以轻微弯曲的轮廓向上蜿蜒,在所有内部空间之间提供流体连接。在内部,随着椭圆随着螺旋的每一圈而扩展,天窗空洞在令人惊叹的景观中打开。在建筑外部,建筑采用了动态,向上的雕塑的幌子。戏剧性的中庭拥有丰富的内部视觉联系,营造出有利于沟通和社区感的自然氛围。
立面装饰有意识地为整体构图添加了更多柔和细腻的注脚。该建筑采用精细,几近鳞片状的不锈钢丝网包裹。这个窗帘的表皮沿着膨胀的螺旋线柔和地向上卷曲,与屋顶露台的交界处由开放式立面框架加以强调装饰。
这座笼罩着雕塑般的独立式建筑在白天看极其强调向内性,但在在傍晚时分却被重新塑造成透明的灯塔。Cocoon使用了大气能源源热泵系统进行节能环保来供暖和空气制冷。
图纸
平面图
平面图
平面图
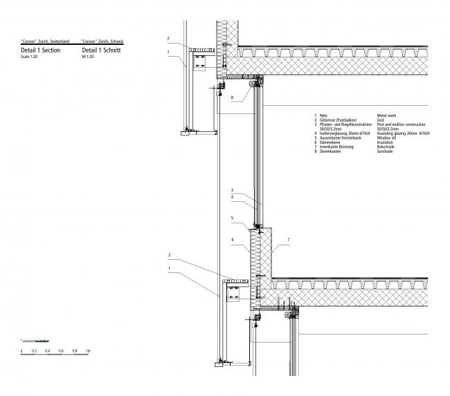
细部构造图
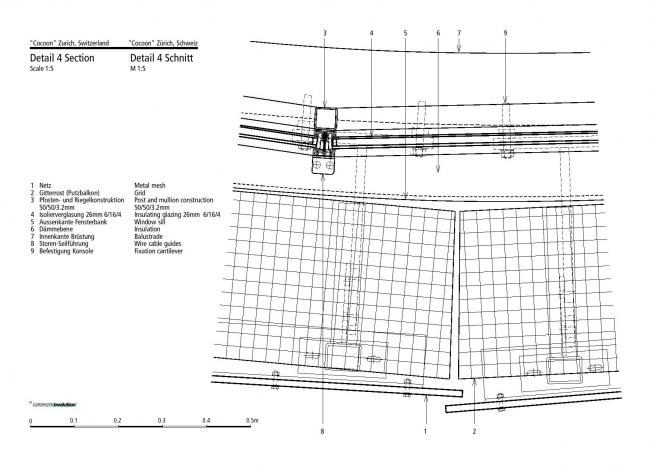
细部构造图
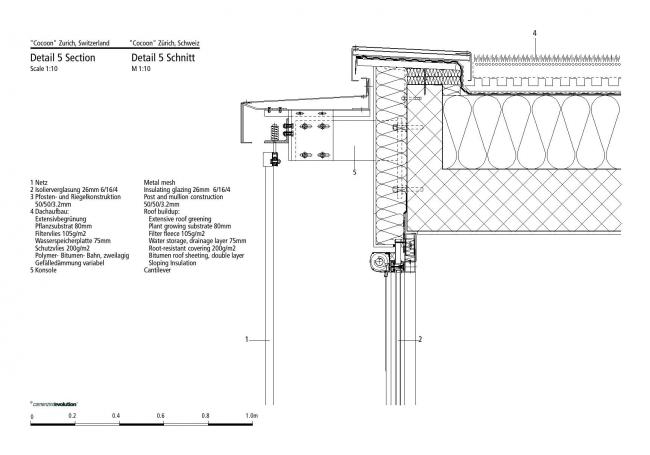
细部构造图
细部构造图
细部构造图
立面图
平面图
平面图
立面图
平面图
平面图
剖面图
剖面图
场地平面图
立面图
平面图
立面图
平面图
项目信息
建筑师:Camenzind Evolution
地点:瑞士苏黎世
项目团队:Stefan Camenzind,Marco Noch,Susanne Zenker
委托方:瑞士人生
成本造价:8,800,000美元
建筑面积:1900.0平方米
项目年份:2007年
建筑摄影师:Camenzind Evolution

BIM建筑网















































