1894年,清末,大清与日本发生战争,时年为甲午年,故称甲午战争,最终大清战败,并于1895年4月17日由李鸿章代表和日本签订《马关条约》。
自此,台湾被割让给日本,开始了日本50年的殖民统治,台湾人民进行了牺牲巨大的武装抗争,最后以失败告终,但台湾人民英勇对抗日本侵略的历史应该被牢牢记住。
三井物产株式会社旧仓库(简称三井仓库)是位于台湾台北市的洋式建筑,坐落于忠孝西路一段265号(原北门町),在日治时期由三井物产所兴建。2012年5月7日台北市政府公告为台北市历史建筑。
该建物为日治时期三井物产之仓库,建筑年代约为1914年,为三崁式2楼砖木混合建造房屋、寄栋造屋顶,主梁木桁架跨距深远,建物中央正背立面均设山墙。
二次大战结束后,仓库产权交给台湾省政府物资局,2002年之后移交给台铁,后又移拨给台北市政府。2014年台北市政府推行「西区门户计画」。2018年11月1日,历经2年修复,室内空间置入新的元素与功能,三井仓库化身为「记忆仓库」,正式对外开放。
三井仓库
三井株式会社旧仓库,见证了台湾日治殖民时期的产业发展,所处的地理位置也代表台北市商业发展由水运到陆运移转过程之涵义,是非常具有保存价值的历史建物。
为北门计画中重要的节点;透过艺文活动传达,让更多人了解此地文化发展的脉络是如何形成。台北是浸泡在时光机的城市,大稻埕、北门是一代又一代不能忘记的过去,百年来孕育出繁盛的商业活动、丰富的常民生活和悠久的民间信仰。
当风华褪去,如何注入新生命,彰显人文特色并推动产业复苏保留岁月的美感,让老建筑自然地融入我们的生活。仓库写下生活的精神,奠定文化的根。让我们用旧建筑书写历史,一起造访这个独一无二的新思维空间。
空间说明
三井仓库,又叫记忆仓库。
我们在一楼的中央处置入了一个「记忆小书城」,作为记忆仓库中最重要的空间,让人可以在这里获得北门周边、三井仓库甚至是整个台北发展的历史记忆。当人走进小书城里面时感受到的是一个明亮质朴的展示空间,我们利用这个纯粹的空间来凸显文物,也营造出一种尊重过去历史的氛围。
参观者除了会在这个空间中看到许多展示着过去历史的文物,还可以利用VR的技术体验,接收三井仓库和北门的故事以及台北的历史记忆。
小书城-概念
金属拱门,轻盈回应砖拱的意象。玻璃砖与清水砖围塑出记忆书城的空间,砖块的叠砌回应三井仓库的砖块纹理。磨石子地坪创造怀旧的空间,让记忆书城的空间古朴纯粹。
金属书架,色泽随着时间而变化,记录着时间流动。
记忆小书城是一个面积7mx4m的墙体空间,墙面材料是玻璃砖搭配清水砖,墙面外包围着金属的书架。我们企图用一个轻盈且穿透的量体置入其中,再利用砖块的叠砌来对应这栋砖造的历史建筑,让「新」与「旧」之间产生有趣的对话。
书架选择用金属当作材料,希望它的颜色会随着时间慢慢过去而有所变化,从全新光泽明亮的状态慢慢变色,在渐变的过程中,时间的流动,也让记忆书城的「新」慢慢与三井仓库的「旧」融合。
记忆之墙-穿越
当我们坐电梯来到二楼时第一眼看到的墙面,我们把原本的旧有钢柱立在地上作为历史陈列,并运用点和钢丝网做出框架,上面悬吊着红砖,并用铁板做出圆拱门洞的形状,利用装置艺术的手法,让参观者透过这个洞看出窗户时,会看到一个隐喻三井仓库原本的位置的影像,借此告诉参观者原本三井仓库的位置与周遭环境的关系。
用餐区及B a r吧台
在这个建筑里,我们设定了吧台及用餐区,让后续的营运方式得以多元化,吸引更多民众来此参观(BIM学习),大家可以来此喝咖啡、看书、听演讲及参加展演活动,度过一下午的美好时光。
我们企图用『大正浪漫』风格来打造和洋兼容的空间氛围,因此用了许多的复古砖及花砖来做为场域的区隔,酒瓶造型的灯具、吧台的壁砖、厕所的的壁砖等等。
在一楼的长条座位区设定为以后的咖啡座,用的是复古绿的绒布来呈现时代氛围。
2楼讲堂及展场
2楼设定了一个讲堂,让许多的艺文活动、展演及文化讲堂都可在此举办,也设定出用餐区块,以及一个办公室,目前大部分空间暂时作为历史展览使用,展示一些北门附近的文化类及古迹建筑,像是北门、台北驿、北门驿、台北工场、抚台街洋楼、邮便局等建筑的历史地景意象,让民众更了解我们的文化资产。
结语
三井仓库肩负着文化宣传的使命,也代表着台北市一段重要的文化历史,是非常具有保存的价值,除了让民众可以来这里游玩,还能串连整个西区,是西区的门户,与其让它颓败不堪,重组复旧并给予新的功能,那就是一件非常有意义和有价值的事情。
图纸
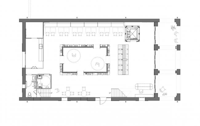
一层平面图
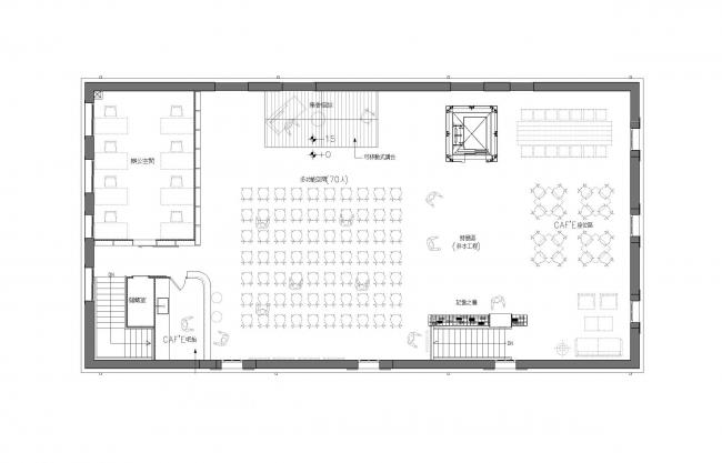
二层平面图
一层空间规划示意图
二层空间规划示意图
剖面图
剖面图
剖面图
剖面图
剖面图
剖面图
剖面图
剖面图
项目信息
作品名称:三井仓库M I T S U I – W A R E H O U S E
主办机关:台北市政府文化局
再利用设计监造:戴小芹建筑师事务所、黄巢设计工务店黄建华
再利用工程:川力营造(BIM)有限公司
业主:台北市政府文化局
座落地点:台北市忠孝西路一段265号
主要建材:清水砖、玻璃砖、镀钛金属、铁件、花砖、杉木企口、松木实木板
面积:基地面积527.29 ㎡、建筑面积275.63 ㎡、总楼地板面积511.44 ㎡
层数高度:层数 / 地下0 层、地上2 层;高度/ 11.08 m
设计时间:西元2017年09月至2018年01月
施工时间:西元2018年04月至2018年08月
项目设计团队
从左至右依次为:黄建华、黄建伟、戴小芹
黄巢设计团队主创建筑师 黄建华

BIM建筑网


















































