院子是童年的记忆,这种记忆真实而温暖。记得十几年前到北京寻找生计,最能打动我的也是胡同里的四合院,邻里之间的一声问候“您吃了吗”让人倍感温暖,空气中弥漫的饭菜香味让你似曾相识。是的,这就是童年的记忆,一种人与人之间最朴实的交流。
酒店项目的所在地是距离后海200米远的柳荫街十号(地图定位)。据说这原本是一座完整的三进四合院,不知道什么原因被分割成三个不同的房东,我们租住的只是其中的一进,虽然面积不大(280㎡)但依然保持着良好的合院格局。内向的空间,高低错落的屋檐,让你立刻感受到传统文化的魅力。
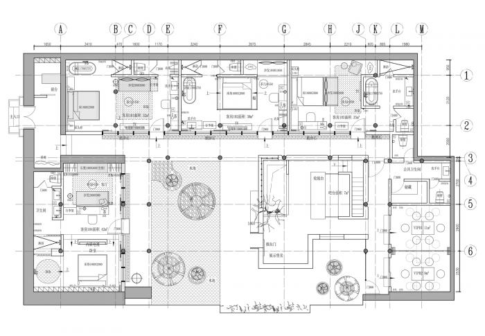
院子平面成一个U字型,与隔壁墙体形成四面围合。在这里我们需要满足四间客房,一个下午茶和早餐厅的功能,虽然功能并不复杂,但是面积的捉襟见肘让我们大伤脑筋。入口处需要一个小服务台,接下来就是,四间客房,倒座房是其中的一间,面积最大,它的格局介于套房和普通客房之间。由于房间的内部标高还不错,我们考虑了榻榻米方案,床垫直接落地,来增加酒店的放松休闲感。其他三间客房在左手边一字排开,面向院内借景。改造之后的落地窗会增加更多的自然采光,另外屋顶也设计了采光天窗,即使是躺在床上也能感受到自然光线的洗礼。
△ 空间轴测图
这三间客房分别做了不同的平面布局,意在尝试不同动线下的客人的住宿体验。再往里面就是酒店的功能空间,洗手间和储藏空间把下午茶餐厅同酒店的居住区域分开,里面分别是两间下午茶vip包间,也是多功能空间,这里不但可以作为散台使用,同时也可以承接小型会议,沙龙以及展览等等。最后剩下空间就是院子,一个地下室和几棵相映成趣的古树构成了院子的全部。
地下室面积比较小,为了能很好的提高空间效率我们加建了一个小建筑,这个空间非常重要,它不但要满足下午茶和早餐的出品,同时也把地下室空间与vip包间有效的联系起来,楼梯和建筑的天窗,照亮了原本阴暗的地下室,让原本幽暗的空间充满了无限的温暖。几颗古树安静的伫立在院子中间,仿佛窃窃私语,与我们的客人时而打着招呼。院子里的水池设计是我们有意而为之,水是万物之灵,有了水我们的小院便有了灵性。
在设计的过程中我们始终保持着一种克制。顺势而为,顺其自然是设计师一直保持的心态。这里我们不做过多的粉饰,更多的是强调生活中朴素的真实和美。生活就是艺术,艺术便是生活,它就在元古酒店,就在你我的身边。
△ 平面图
项目信息
项目类型:酒店
项目地点:北京,中国
建筑事务所:元古设计
面积:280m²
项目年份:2020
摄影师:Shuang Zhao
厂家:DIAMAS Lighting,SIKI Lighting
主创建筑师:傅湘锋、赵爽、马冬洁、郑雅楠、李敏健
委托方:元古集团
结构设计:华装兄弟华秀江团队
景观设计:元古设计
施工方:华装兄弟华秀江团队
合作方:石客照明、熙呈照明

BIM建筑网































